- Home
- Produits
- Volets de désenfumage
- OUVRAGE
- Installation
OUVRAGE - Installation
Installation dans la façade avec précadre EASY-KAP
Dans le cas d’une façade en béton, le précadre EASY-KAP est fortement recommandé. Le précadre EASY-KAP sera positionné sur la façade extérieure sur laquelle l’OUVRAGE va être posé.
En cas de vissage du précadre :
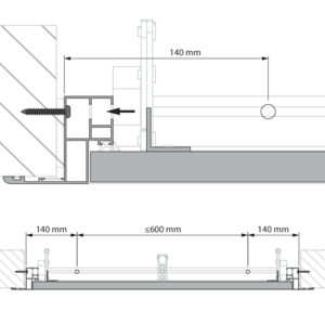
Faites une baie aux dimensions (Ln+20) x (Hn+20) mm. Le précadre doit toujours être fixé au béton à l’aide de vis et chevilles (Ø 6 x minimum 60 mm, acier ou acier inoxydable). Fixez le précadre dans la réservation avec 4 vis Ø 6 x 60 mm en prenant soin de ne pas le déformer. Ces vis peuvent être appliquées au travers d’une des perforations prévues dans les pattes, selon l’épaisseur de la façade. La baie finie doit être aux dimensions du précadre (Ln+10) x (Hn+10) mm.
En cas de calfeutrement du précadre :
Faites une baie aux dimensions (Ln+20) x (Hn+20) mm jusqu’à (Ln+100) x (Hn+100) mm en fonction de l’épaisseur de calfeutrement que vous souhaitez.
Pour une baie aux dimensions jusqu’à (Ln+20) x (Hn+20) mm : Préparez le précadre avant l’installation : 2 pattes de calfeutrement sont prévues sur chaque traverse et doivent être dépliées lors du calfeutrement.
Pour une baie aux dimensions jusqu’à (Ln+100) x (Hn+100) mm : Appliquez du mortier sur le pourtour de la réservation pour réduire la réservation aux dimensions extérieures du cadre. Procédez ensuite comme indiqué ci-dessus pour fixer le cadre à la réservation. Assurez-vous que l’écart entre le cadre et la réservation est complètement scellé avec du mortier. Le mortier doit sécher complètement avant que l’ouvrant ne soit fixé au précadre.
En cas de vissage du précadre :
Faites une baie aux dimensions (Ln+20) x (Hn+20) mm. Le précadre doit toujours être fixé au béton à l’aide de vis et chevilles (Ø 6 x minimum 60 mm, acier ou acier inoxydable). Fixez le précadre dans la réservation avec 4 vis Ø 6 x 60 mm en prenant soin de ne pas le déformer. Ces vis peuvent être appliquées au travers d’une des perforations prévues dans les pattes, selon l’épaisseur de la façade. La baie finie doit être aux dimensions du précadre (Ln+10) x (Hn+10) mm.
En cas de calfeutrement du précadre :
Faites une baie aux dimensions (Ln+20) x (Hn+20) mm jusqu’à (Ln+100) x (Hn+100) mm en fonction de l’épaisseur de calfeutrement que vous souhaitez.
Pour une baie aux dimensions jusqu’à (Ln+20) x (Hn+20) mm : Préparez le précadre avant l’installation : 2 pattes de calfeutrement sont prévues sur chaque traverse et doivent être dépliées lors du calfeutrement.
Pour une baie aux dimensions jusqu’à (Ln+100) x (Hn+100) mm : Appliquez du mortier sur le pourtour de la réservation pour réduire la réservation aux dimensions extérieures du cadre. Procédez ensuite comme indiqué ci-dessus pour fixer le cadre à la réservation. Assurez-vous que l’écart entre le cadre et la réservation est complètement scellé avec du mortier. Le mortier doit sécher complètement avant que l’ouvrant ne soit fixé au précadre.
Une fois, le pré-cadre fixé au conduit, dévissez les 4 renforts (8 vis) et repliez les 8 pattes de fixation dans le cadre.
Une fois, le pré-cadre fixé au conduit, dévissez les 4 renforts (8 vis) et repliez les 8 pattes de fixation dans le cadre.
L’ouvrant OUVRAGE est livré avec 4 pattes, positionnez-les sur les pattes de L’EASY-KAP.
Ouvrez l’ouvrant, positionnez-le dans le précadre afin de mettre les pattes d’OUVRAGE et d’EASY-KAP en vis à vis.
Vissez l’ouvrant sur le précadre à l’aide des 4 vis fournies à travers les pattes, comme indiqué sur le dessin.
Une fois, le pré-cadre fixé au conduit, dévissez les 4 renforts (8 vis) et repliez les 8 pattes de fixation dans le cadre.
L’ouvrant OUVRAGE est livré avec 4 pattes, positionnez-les sur les pattes de L’EASY-KAP.
Ouvrez l’ouvrant, positionnez-le dans le précadre afin de mettre les pattes d’OUVRAGE et d’EASY-KAP en vis à vis.
Vissez l’ouvrant sur le précadre à l’aide des 4 vis fournies à travers les pattes, comme indiqué sur le dessin.
Le serrage des vis tire l’ouvrant vers le mur jusqu’à sa position finale. Il permet également de corriger légèrement l’angle de l’ouvrant par rapport au précadre.
Branchez le mécanisme selon le schéma de raccordement.
Tester le bon fonctionnement du vantail.
Note : attention à ne pas laisser tomber l’ouvrant à l’extérieur du bâtiment lors de la mise en place dans le précadre. Si besoin, utiliser une sangle de sécurité.
Branchez le mécanisme selon le schéma de raccordement.
Tester le bon fonctionnement du vantail.
Note : attention à ne pas laisser tomber l’ouvrant à l’extérieur du bâtiment lors de la mise en place dans le précadre. Si besoin, utiliser une sangle de sécurité.
Installation dans la façade sans précadre
Remarques générales
- L'installation doit être conforme au rapport de classement et à la notice technique.
- Le montage de le conduit de désenfumage doit être conforme au rapport de classement du fabricant.
- Orientation de l'axe: voir déclaration des performances.
- Évitez l’obstruction des conduits de désenfumage connectées.
- Vérifiez le libre mouvement de la lame mobile.
- Les volets de désenfumage Rf-t peuvent être appliqués à des conduits de désenfumage soumis à des essais conformément à l'EN 1366-8 et à l'EN 1366-9 selon le cas.
- Attention : lors de la pose, le produit doit être manipulé avec précaution et protégé de toute projection de produits de calfeutrement.
- Attention : à la mise en route de l'installation, nettoyez l'ensemble des poussières et salissures.
- Attention : pour le montage en conduit de désenfumage tenez compte du débattement du volet.