Open to innovation, closed to fire
retour
Home
Produits
Clapets coupe-feu
Clapets coupe-feu terminaux
Volets de désenfumage
Volet de transfert
Grilles coupe-feu
Manchons coupe-feu
Matériau de colmatage
Sécurité incendie
Compartimentage
Désenfumage
Contexte légal
Clapet coupe-feu et CVC
Qui est Rf-Technologies
Rf-Technologies
Qualité
Références clients
Offres d'emploi
FAQ
My Rf-t
S'identifier
Créer un compte
Mot de passe oublié ?
BIM
Outils de calcul
Déclarations des performances
Contact
Adresse et itinéraire
Demander un code d'accès
Équipe de vente
Après vente
Français (change language)
België
Belgique
Deutschland
United Kingdom
France
Italia
Nederland
Schweiz
Suisse
Svenska
Europe (English)
©2025 Rf-Technologies NV/SA. Tous droits réservés.
Données personnelles & Dispositions générales
Conditions générales de vente
Plan du site
Open to innovation, closed to fire
France
Choose your language:
België
Belgique
Deutschland
United Kingdom
France
Italia
Nederland
Schweiz
Suisse
Svenska
Europe (English)
Se connecter
Contactez-nous
Open to innovation, closed to fire
VU120
Caractéristiques
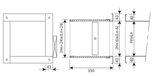
Dimensions
Données de sélection
Installation
Classement
Documents
Mécanismes
Options et kits
Types de bride
Home
Produits
Volets de désenfumage
VU120
Types de bride
VU120 - Types de bride
PS - Sans raccordement (raccordement standard côté conduit). Aussi possible côté conduit : PG30, PG20, PG40, PM.
PG30 - Raccordement sur gaines pourvues de brides de 30 mm (soit par système à glissière, soit par boulons). Aussi possible côté conduit au lieu du raccordement PS (à mentionner à la commande). Trous elliptiques de Ø 8,5 x 16 mm.
PG20 - Raccordement sur gaines pourvues de brides de 20mm, trous elliptiques Ø 6,5 x 16 mm. Aussi possible côté conduit au lieu du raccordement PS (à mentionner à la commande).
PG40 - Raccordement sur gaines pourvues de brides de 40mm, trous elliptiques Ø 8,5 x 16 mm. Aussi possible côté conduit au lieu du raccordement PS / PG30 (à mentionner à la commande).
PM - Raccordement aux gaines par emboîtement. Ce type de bride est utilisé là où il y a un manque d'espace pour une bride PG30 standard. Possible côté du mécanisme au lieu du raccordement PG30 (à mentionner à la commande).
PRJ - Raccordement circulaire avec joint d'étanchéité sur un volet rectangulaire avec bride PG20. Possible côté du mécanisme au lieu du raccordement PG30 (à mentionner à la commande).
PPT (+PG3V) - Treillis, idéal comme grille de protection sur un élément terminal d'un réseau de gaines. Cadre allongé PG3V inclus dès que la lame dépasse le tunnel. Possible côté du mécanisme au lieu du raccordement PG30 (à mentionner à la commande).
Caractéristiques
Dimensions
Données de sélection
Installation
Classement
Documents
Mécanismes
Options et kits
Types de bride
To top