- Home
- Producten
- Rookbeheersingskleppen
- MARKAGE MB-1S
- Installatie
MARKAGE MB-1S - Installatie
Plaatsing in massieve wand
Het product werd getest en goedgekeurd in:

Maak een opening met afmeting (Bn+A) x (Hn+150) mm. A = 375 mm voor een standaard klep. Opgelet: voor een klep met een hoogte ≤ 400 mm en met optie BP FM of ZENiX 1SD is A = 545 mm.
Plaatsing in massieve wand, afdichting harde steenwolplaten met coating
Het product werd getest en goedgekeurd in:

Maak een opening met afmeting (Bn+A+C+D) x (Hn+70+B+E) mm. A = 295 mm voor een standaard klep. Opgelet: voor een klep met een hoogte ≤ 400 mm en met optie BP FM of ZENiX 1SD is A = 465 mm.

Plaats de klep in de opening. Afdichting B, C, D & E tussen 50 en 400 mm.
De klep moet niet centraal in de opening geplaatst worden. De afstand tussen de klep en de rand van de opening is maximaal 400 mm.
De klep moet niet centraal in de opening geplaatst worden. De afstand tussen de klep en de rand van de opening is maximaal 400 mm.

Stut de tunnel en plaats de klepbladen in gesloten toestand om vervorming van de tunnel tijdens het uitdrogen van de afdichting tegen te gaan.

Dicht de resterende opening af met 2 lagen gecoate harde steenwolplaten van 50 mm (type PROMASTOP CB-CC). Deze platen moeten geschrankt geplaatst worden. Breng bij plaatsing telkens vulpasta (type PROMASTOP-CC) aan op het eind van elke plaat.
Plaatsing in massieve wand met kraag 1S
Het product werd getest en goedgekeurd in:
- Cellenbeton ≥ 100 mm | EI 90/120 (vew i o) S1500 C10000 HOT 400/30 MA MULTI | Niet van toepassing | Installatiemethode: ingebouwd 0°/90°/180°/270°. In compartimentsgrens (wand, 'w'). | 200x200 mm ≤ MARKAGE MB-1S ≤ 1000x1600 mm

Maak een opening met afmeting (Bn+A) x (Hn+90) mm. A = 315 mm voor een standaard klep. Opgelet: voor een klep met een hoogte ≤ 400 mm en met optie BP FM of ZENiX 1SD is A = 485 mm.

Plaats de klep centraal in de opening totdat de kraag aansluit met de wand en de bevestigingsgaten van de kraag uitlijnen op 50 mm van de rand van de opening.
Bevestig de kraag in de wand met de bijgeleverde schroeven Ø 8 x 110 mm en rondsels.
Opgelet: de meegeleverde schroeven zijn enkel van toepassing voor cellenbeton. Gebruik het geschikte type schroeven per wandtype: Voor volle baksteen: voorboren met Ø6mm en de meegeleverde schroeven en rondsels gebruiken. Voor verdicht beton: gebruik beton schroeven of ankers met karakteristieke weerstand R90...R120 ≥ 0.1kN.
Bevestig de kraag in de wand met de bijgeleverde schroeven Ø 8 x 110 mm en rondsels.
Opgelet: de meegeleverde schroeven zijn enkel van toepassing voor cellenbeton. Gebruik het geschikte type schroeven per wandtype: Voor volle baksteen: voorboren met Ø6mm en de meegeleverde schroeven en rondsels gebruiken. Voor verdicht beton: gebruik beton schroeven of ankers met karakteristieke weerstand R90...R120 ≥ 0.1kN.
Plaatsing in massieve vloer
Het product werd getest en goedgekeurd in:

Maak een opening met afmeting (Bn+A) x (Hn+150) mm. A = 375 mm voor een standaard klep. Opgelet: voor een klep met een hoogte ≤ 400 mm en met optie BP FM of ZENiX 1SD is A = 545 mm.
Plaatsing in massieve vloer, afdichting harde steenwolplaten met coating
Het product werd getest en goedgekeurd in:

Maak een opening met afmeting (Bn+A+C+D) x (Hn+70+B+E) mm. A = 295 mm voor een standaard klep. Opgelet: voor een klep met een hoogte ≤ 400 mm en met optie BP FM of ZENiX 1SD is A = 465 mm.

Afdichting B, C, D & E tussen 50 en 400 mm.
De klep moet niet centraal in de opening geplaatst worden. De afstand tussen de klep en de rand van de opening is maximaal 400 mm.
De klep moet niet centraal in de opening geplaatst worden. De afstand tussen de klep en de rand van de opening is maximaal 400 mm.

Stut de tunnel en plaats de klepbladen in gesloten toestand om vervorming van de tunnel tijdens het uitdrogen van de afdichting tegen te gaan.

Dicht de resterende opening af met 2 lagen gecoate harde steenwolplaten van 50 mm (type PROMASTOP CB-CC). Deze platen moeten geschrankt geplaatst worden. Breng bij plaatsing telkens vulpasta (type PROMASTOP-CC) aan op het eind van elke plaat.
Plaatsing in refractair horizontaal kanaal, binnen het vlak van het kanaal
Het product werd getest en goedgekeurd in:

De klep kan rechtstreeks in deze opening geplaatst worden.
Plaats de klep in de opening met het toegangsluik toegankelijk. De achterwand van de klep wordt tot tegen het kanaal geplaatst.
Voor de installatie van de klep is er geen minimum diepte van het kanaal vereist. Het product vormt geen belemmering voor de luchtstroom in het kanaal.
Plaats de klep in de opening met het toegangsluik toegankelijk. De achterwand van de klep wordt tot tegen het kanaal geplaatst.
Voor de installatie van de klep is er geen minimum diepte van het kanaal vereist. Het product vormt geen belemmering voor de luchtstroom in het kanaal.

Dicht de voeg tussen de klep en de opening af met Promat lijm K84. Plaats de positioneer- en afdichtingsstroken met schroeven Ø 5 x 50 mm met een maximale tussenafstand van 200 mm en Promat lijm K84. Let op dat er geen schroeven door de behuizing van de klep komen.
Maak de positioneer- en afdichtingsstroken uit schachtmateriaal. Gebruik voor een hoekafdichting twee stroken van respectievelijk 80 mm en 60 mm.
Maak de positioneer- en afdichtingsstroken uit schachtmateriaal. Gebruik voor een hoekafdichting twee stroken van respectievelijk 80 mm en 60 mm.
Plaatsing in refractair horizontaal kanaal, samenvallend met een van de zijkanten van het kanaal
Het product werd getest en goedgekeurd in:

Maak een opening met minimale afmeting (Bn+70) x (Hn+70) mm.
Indien de opening samenvalt met een rand van het kanaal, volg dan onderstaande inbouwwijze.
Indien de opening samenvalt met een rand van het kanaal, volg dan onderstaande inbouwwijze.

De klep kan rechtstreeks in deze opening geplaatst worden.
In het geval dat er flenzen van de klep samenvallen met een rand van het kanaal, let er dan op dat deze in hetzelfde vlak vallen en aansluiten.
Voor de installatie van de klep is er geen minimum diepte van het kanaal vereist. Het product vormt geen belemmering voor de luchtstroom in het kanaal.
In het geval dat er flenzen van de klep samenvallen met een rand van het kanaal, let er dan op dat deze in hetzelfde vlak vallen en aansluiten.
Voor de installatie van de klep is er geen minimum diepte van het kanaal vereist. Het product vormt geen belemmering voor de luchtstroom in het kanaal.

Dicht de voeg tussen de klep en de opening af met Promat lijm K84. Plaats de positioneer- en afdichtingsstroken met schroeven Ø 5 x 50 mm met een maximale tussenafstand van 200 mm en Promat lijm K84. Let op dat er geen schroeven door de behuizing van de klep komen.
Maak de positioneer- en afdichtingsstroken uit schachtmateriaal. Gebruik voor een hoekafdichting twee stroken van respectievelijk 80 mm en 60 mm.
Maak de positioneer- en afdichtingsstroken uit schachtmateriaal. Gebruik voor een hoekafdichting twee stroken van respectievelijk 80 mm en 60 mm.
Plaatsing in refractair verticaal kanaal of in het verticaal vlak van een horizontaal kanaal, binnen het vlak van het kanaal
Het product werd getest en goedgekeurd in:

De klep kan rechtstreeks in deze opening geplaatst worden.
Plaats de klep in de opening met het toegangsluik toegankelijk. De achterwand van dit compartiment wordt tot tegen het kanaal geplaatst.
Voor de installatie van de klep is er geen minimum diepte van het kanaal vereist. Het product vormt geen belemmering voor de luchtstroom in het kanaal.
A = 295 mm voor een standaard klep. Opgelet: voor een klep met een hoogte ≤ 400 mm en met optie BP FM of ZENiX 1SD is A = 465 mm.
Plaats de klep in de opening met het toegangsluik toegankelijk. De achterwand van dit compartiment wordt tot tegen het kanaal geplaatst.
Voor de installatie van de klep is er geen minimum diepte van het kanaal vereist. Het product vormt geen belemmering voor de luchtstroom in het kanaal.
A = 295 mm voor een standaard klep. Opgelet: voor een klep met een hoogte ≤ 400 mm en met optie BP FM of ZENiX 1SD is A = 465 mm.

Dicht de voeg tussen de klep en de opening af met Promat lijm K84. Plaats de positioneer- en afdichtingsstroken met schroeven Ø 5 x 50 mm met een maximale tussenafstand van 200 mm en Promat lijm K84. Let op dat er geen schroeven door de behuizing van de klep komen.
Maak de positioneer- en afdichtingsstroken uit schachtmateriaal. Gebruik voor een hoekafdichting twee stroken van respectievelijk 80 mm en 60 mm.
Maak de positioneer- en afdichtingsstroken uit schachtmateriaal. Gebruik voor een hoekafdichting twee stroken van respectievelijk 80 mm en 60 mm.
Plaatsing in refractair verticaal kanaal, samenvallend met een van de zijkanten van het kanaal
Het product werd getest en goedgekeurd in:

Maak een opening met minimale afmeting (Bn+70) x (Hn+70) mm.
Indien de opening samenvalt met een rand van het kanaal, volg dan onderstaande inbouwwijze.
Indien de opening samenvalt met een rand van het kanaal, volg dan onderstaande inbouwwijze.

Optioneel kan de klep afzonderlijk opgehangen worden met de verticale ophanging (VS MAS).
De klep kan rechtstreeks in deze opening geplaatst worden.
Plaats de klep in de opening met het toegangsluik toegankelijk.
De achterwand van de klep wordt tot tegen het kanaal geplaatst indien het niet buiten het kanaal valt.
In het geval dat er flenzen van de klep samenvallen met een rand van het kanaal, let er dan op dat deze in hetzelfde vlak vallen en aansluiten.
Voor de installatie van de klep is er geen minimum diepte van het kanaal vereist. Het product vormt geen belemmering voor de luchtstroom in het kanaal.
De klep kan rechtstreeks in deze opening geplaatst worden.
Plaats de klep in de opening met het toegangsluik toegankelijk.
De achterwand van de klep wordt tot tegen het kanaal geplaatst indien het niet buiten het kanaal valt.
In het geval dat er flenzen van de klep samenvallen met een rand van het kanaal, let er dan op dat deze in hetzelfde vlak vallen en aansluiten.
Voor de installatie van de klep is er geen minimum diepte van het kanaal vereist. Het product vormt geen belemmering voor de luchtstroom in het kanaal.

Dicht de voeg tussen de klep en de opening af met Promat Lijm K84. Gebruik voor een vlakke afdichting op de flens van de klep een vlakke lat van 10 x 100 mm uit calciumsilicaat met densiteit 870 kg/m³ (type PROMATECT H). Bevestig deze latten met twee rijen schroeven van Ø 3,9 x 35 mm in stappen van 150 mm.

Plaats de positioneer- en afdichtingsstroken met schroeven Ø 5 x 50 mm met een maximale tussenafstand van 200 mm en Promat lijm K84. Let op dat er geen schroeven door de behuizing van de klep komen.
Maak de positioneer- en afdichtingsstroken uit schachtmateriaal. Gebruik voor een hoekafdichting twee stroken van respectievelijk 80 mm en 60 mm.
Maak de positioneer- en afdichtingsstroken uit schachtmateriaal. Gebruik voor een hoekafdichting twee stroken van respectievelijk 80 mm en 60 mm.
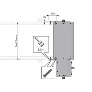
Plaatsing in het verticaal vlak van een refractair horizontaal kanaal, samenvallend met een van de zijkanten van het kanaal
Het product werd getest en goedgekeurd in:

Maak een opening met minimale afmeting (Bn+70) x (Hn+70) mm.
Indien de opening samenvalt met een rand van het kanaal, volg dan onderstaande inbouwwijze.
Indien de opening samenvalt met een rand van het kanaal, volg dan onderstaande inbouwwijze.

Optioneel kan de klep afzonderlijk opgehangen worden met de verticale ophanging (VS MAS).
De klep kan rechtstreeks in deze opening geplaatst worden.
Plaats de klep in de opening met het toegangsluik toegankelijk.
De achterwand van de klep wordt tot tegen het kanaal geplaatst indien het niet buiten het kanaal valt.
In het geval dat er flenzen van de klep samenvallen met een rand van het kanaal, let er dan op dat deze in hetzelfde vlak vallen en aansluiten.
Voor de installatie van de klep is er geen minimum diepte van het kanaal vereist. Het product vormt geen belemmering voor de luchtstroom in het kanaal.
De klep kan rechtstreeks in deze opening geplaatst worden.
Plaats de klep in de opening met het toegangsluik toegankelijk.
De achterwand van de klep wordt tot tegen het kanaal geplaatst indien het niet buiten het kanaal valt.
In het geval dat er flenzen van de klep samenvallen met een rand van het kanaal, let er dan op dat deze in hetzelfde vlak vallen en aansluiten.
Voor de installatie van de klep is er geen minimum diepte van het kanaal vereist. Het product vormt geen belemmering voor de luchtstroom in het kanaal.

Dicht de voeg tussen de klep en de opening af met Promat lijm K84. Plaats de positioneer- en afdichtingsstroken met schroeven Ø 5 x 50 mm met een maximale tussenafstand van 200 mm en Promat lijm K84. Let op dat er geen schroeven door de behuizing van de klep komen.
Maak de positioneer- en afdichtingsstroken uit schachtmateriaal. Gebruik voor een hoekafdichting twee stroken van respectievelijk 80 mm en 60 mm.
A = 295 mm voor een standaard klep. Opgelet: voor een klep met een hoogte ≤ 400 mm en met optie BP FM of ZENiX 1SD is A = 465 mm.
Maak de positioneer- en afdichtingsstroken uit schachtmateriaal. Gebruik voor een hoekafdichting twee stroken van respectievelijk 80 mm en 60 mm.
A = 295 mm voor een standaard klep. Opgelet: voor een klep met een hoogte ≤ 400 mm en met optie BP FM of ZENiX 1SD is A = 465 mm.
Plaatsing in massieve schachtwand met afdichting mortel
Het product werd getest en goedgekeurd in:

Maak een opening met afmeting (Bn + A + max 80mm) x (Hn + 150mm). A = 295 mm voor een standaard klep. Opgelet: voor een klep met een hoogte ≤ 400 mm en met optie BP FM of ZENiX 1SD is A = 465 mm.

Optioneel kan de klep centraal in de opening geplaatst worden met behulp van de KITS SUPP.
Plaats elementen van de KITS SUPP op de aangegeven afstanden in de opening. Bevestig elk element in de dagkant door het te kleven of te schroeven.
Opgelet: zorg ervoor dat beide wiggen van elk element KITS SUPP verschuifbaar blijven t.o.v. elkaar.
Zet de pas uit voor de plaatsing van de klep. Door elk element van de KITS SUPP te verschuiven, is de hoogte aanpasbaar. Zet een rechte hoek uit door de elementen van de KITS SUPP op de verticale dagkant uit te regelen.
Opgelet: de elementen van de KITS SUPP komen niet voor aan het actuatorcompartiment van de klep.
Opgelet: zorg ervoor dat beide wiggen van elk element KITS SUPP verschuifbaar blijven t.o.v. elkaar.
Zet de pas uit voor de plaatsing van de klep. Door elk element van de KITS SUPP te verschuiven, is de hoogte aanpasbaar. Zet een rechte hoek uit door de elementen van de KITS SUPP op de verticale dagkant uit te regelen.
Opgelet: de elementen van de KITS SUPP komen niet voor aan het actuatorcompartiment van de klep.

Plaats de klep in de opening. Laat de klep aansluiten met de elementen van de KITS SUPP indien aanwezig.

Voeg elementen van de KITS SUPP toe aan de resterende zijde op de aangegeven afstanden. Neem de speling weg tussen wand en klep door beide wiggen van elk element KITS SUPP te verschuiven t.o.v. elkaar.
Indien gewenst, veranker de klep in de wand met het geschikte type schroeven per wandtype. Boor voor door zowel de tunnelwand als de elementen van de KITS SUPP.
Opgelet: zorg ervoor dat er geen schroeven uitsteken die de rotatie van de klepbladen verhinderen. Let bij de plaatsing van de schroeven op de draairichting van de klepbladen indien mogelijk.
Indien gewenst, veranker de klep in de wand met het geschikte type schroeven per wandtype. Boor voor door zowel de tunnelwand als de elementen van de KITS SUPP.
Opgelet: zorg ervoor dat er geen schroeven uitsteken die de rotatie van de klepbladen verhinderen. Let bij de plaatsing van de schroeven op de draairichting van de klepbladen indien mogelijk.

Boor voor door zowel de tunnelwand als de elementen van de KITS SUPP voor het plaatsen van bijkomende verankering. Zorg er steeds voor dat alle speling tussen tunnelwand en dagkant volledig opgenomen is door de elementen van de KITS SUPP.
Opgelet: zorg ervoor dat er geen schroeven uitsteken die de rotatie van de klepbladen verhinderen. Let bij de plaatsing van de schroeven op de draairichting van de klepbladen indien mogelijk.
Opgelet: zorg ervoor dat er geen schroeven uitsteken die de rotatie van de klepbladen verhinderen. Let bij de plaatsing van de schroeven op de draairichting van de klepbladen indien mogelijk.

Opgelet: Verankering van de klep zonder KITS SUPP kan het product ernstig beschadigen. Bij het aanspannen van ankerschroeven zonder ondersteuning ter hoogte van de voeg kan de tunnelwand vervormen en breken.

Stut de tunnel en plaats de klepbladen in gesloten toestand om vervorming van de tunnel tijdens het uitdrogen van de afdichting tegen te gaan.
Plaatsing in refractair kanaal, in de doorsnede van het kanaal
Het product werd getest en goedgekeurd in:

Plaats de klep tussenin het kanaal met buitenafmetingen (Bn+70) x (Hn+70) mm. De klep kan afzonderlijk opgehangen worden met de verticale ophanging (VS MAS). Analoog kan de horizontale ophanging (HS MAS) toegepast worden bij een verticaal kanaal.

Dicht de aansluiting tussen de klep en het kanaal af met Promat Lijm K84. Gebruik voor een vlakke afdichting op de flens van de klep een vlakke lat van 10 x 100 mm uit calciumsilicaat met densiteit 870 kg/m³ (type PROMATECT H). Bevestig deze latten met twee rijen schroeven van Ø 3,9 x 35 mm in stappen van 150 mm.
Plaatsing in refractair kanaal, aan het einde van het kanaal
Het product werd getest en goedgekeurd in:

Plaats de klep tussenin het kanaal met buitenafmetingen (Bn+70) x (Hn+70) mm. De klep kan afzonderlijk opgehangen worden met de verticale ophanging (VS MAS). Analoog kan de horizontale ophanging (HS MAS) toegepast worden bij een verticaal kanaal.

Dicht de aansluiting tussen de klep en het kanaal af met Promat Lijm K84. Gebruik voor een vlakke afdichting op de flens van de klep een vlakke lat van 10 x 100 mm uit calciumsilicaat met densiteit 870 kg/m³ (type PROMATECT H). Bevestig deze latten met twee rijen schroeven van Ø 3,9 x 35 mm in stappen van 150 mm.
Batterijmontage met optie JK BAT

Voor een batterijmontage waarbij de klepbladen in elkaars verlengde lopen:
Plaats beide kleppen tegen elkaar met de aansluitingscompartimenten van elkaar verwijderd.
Plaats de calciumsilicaat platen aan de uiteinden van elke groef tussen beide kleppen. Zorg ervoor dat de platen vlak zitten met de aansluitflenzen van de klep.
Plaats beide kleppen tegen elkaar met de aansluitingscompartimenten van elkaar verwijderd.
Plaats de calciumsilicaat platen aan de uiteinden van elke groef tussen beide kleppen. Zorg ervoor dat de platen vlak zitten met de aansluitflenzen van de klep.

Bevestig de ene klep aan de andere met de meegeleverde schroeven Ø 5 x 70 mm. Let hierbij op de draairichting van de klepbladen zodat de schroeven de klepbladen nooit kunnen hinderen.

De aansluitflens met buitenafmetingen ((2 x Bn)+150) mm x (Hn+70) mm is geschikt voor het aansluiten van een gemeenschappelijk kanaal.

Geen JK BAT-kit vereist voor een batterijmontage waarbij de aansluitingscompartimenten in mekaars verlengde lopen:
Plaats beide kleppen tegen elkaar met de aansluitingscompartimenten in elkaars verlengde.
Plaats beide kleppen tegen elkaar met de aansluitingscompartimenten in elkaars verlengde.

Bevestig de ene klep aan de andere met schroeven Ø 5 x 70 mm aan zowel de voor- als achterzijde van de klep.
Plaatsing met verticale ophanging (VS MAS)

Plaats de hoeksteunen op de hoeken van de klep.
De oriëntatie is afhankelijk van de gewenste oriëntatie van de klep (verticale of horizontale klepbladen).
De U-vormen van de hoeksteunen staan uitgelijnd op elkaar en geven de verticale richting aan. De kortste zijde van de hoeksteunen, waar telkens 1 schroef in komt, komt finaal aan de boven- en onderkant van de klep.
De oriëntatie is afhankelijk van de gewenste oriëntatie van de klep (verticale of horizontale klepbladen).
De U-vormen van de hoeksteunen staan uitgelijnd op elkaar en geven de verticale richting aan. De kortste zijde van de hoeksteunen, waar telkens 1 schroef in komt, komt finaal aan de boven- en onderkant van de klep.

Bevestig de hoeksteunen met de bijgeleverde schroeven Ø 5x35 mm. De schroeven ter hoogte van het aansluitingscompartiment zitten op 25 mm van de rand, terwijl de schroeven in de tunnelwand op 55 mm van de rand zitten.

Plaats de draadstangen (≥ M10) voor de ophanging van de klep aan de voor- en achterzijde van de wand, waarbij F = 320 mm voor een standaard klep. Opgelet: voor een klep met een hoogte ≤ 400 mm en met optie BP FM of ZENiX 1SD is F = 490 mm. Plaats op elke draadstang een rondsel en een moer. Breng alle rondsels op gelijke hoogte.

Plaats de klep op de rondsels. De draadstangen vallen telkens binnen de U-vorm van de hoeksteunen. Let erop dat de rondsels vergrendelen in de onderste hoeksteunen.
Bij doorvoering door de compartimentswand moet de ophanging niet geïsoleerd worden. Bij plaatsing in kanalen dient de ophanging gelijkwaardig geïsoleerd te worden als de ophanging van het kanaal.
Bij doorvoering door de compartimentswand moet de ophanging niet geïsoleerd worden. Bij plaatsing in kanalen dient de ophanging gelijkwaardig geïsoleerd te worden als de ophanging van het kanaal.
Plaatsing met horizontale ophanging (HS MAS)

Bevestig de hoeksteunen met de bijgeleverde schroeven Ø5x35 mm. De schroeven ter hoogte van het aansluitingscompartiment zitten op 20 mm van de rand, terwijl de schroeven in de tunnelwand op 50 mm van de rand zitten.

Plaats de draadstangen (≥ M10) voor de ophanging van de klep, waarbij A = 375 mm voor een standaard klep. Opgelet: voor een klep met een hoogte ≤ 400 mm en met optie BP FM of ZENiX 1SD is A = 545 mm. Positioneer de klep en plaats op elke draadstang een rondsel en een moer voor de bevestiging.
Zorg voor de verdere afdichting van de klep volgens de richtlijnen per wandtype.
Zorg voor de verdere afdichting van de klep volgens de richtlijnen per wandtype.
Algemene opmerkingen
- De plaatsing dient steeds te gebeuren conform het installatievoorschrift en het classificatierapport.
- De plaatsing van het rookbeheersingskanaal dient steeds te gebeuren conform het classificatierapport van de fabrikant.
- As oriëntatie: zie prestatieverklaring.
- Vermijd obstructie van aansluitende rookbeheersingskanalen.
- Kijk na of het klepblad vrij kan bewegen.
- Rf-t rookbeheersingskleppen mogen geplaatst worden in rookbeheersingskanalen die, naar gelang het geval, getest werden volgens EN 1366-8 en EN 1366-9.
- Opgelet: tijdens de plaatsing moet het product voorzichtig behandeld worden en beschermd blijven tegen afdichtingsproducten.
- Opgelet: voor het opstarten van het systeem moeten stof en vuil verwijderd worden.
- Opgelet: hou rekening met de minimale vrije ruimte bij het openen van het klepblad.