- Home
- Prodotti
- Serrande tagliafuoco
- CR120
- Installazione
CR120 - Installazione
Installazione a una distanza minima da un'altra serranda o da una struttura di supporto adiacente
Principio
Secondo gli standard di prova europei EN 1366-2, una serranda antincendio deve essere installata ad una distanza minima di 75 mm dalla parete adiacente e a 200 mm da un'altra serranda, a meno che la soluzione non sia stata testata per una distanza minore. Questa gamma di serrande tagliafuoco Rf-t è stata testata con successo e può essere installata in un telaio di supporto verticale o orizzontale, ad una distanza inferiore al valore minimo stabilito dagli standard.
Per le serrande circolari, la distanza minima è fissata a 30 mm.
Secondo gli standard di prova europei EN 1366-2, una serranda antincendio deve essere installata ad una distanza minima di 75 mm dalla parete adiacente e a 200 mm da un'altra serranda, a meno che la soluzione non sia stata testata per una distanza minore. Questa gamma di serrande tagliafuoco Rf-t è stata testata con successo e può essere installata in un telaio di supporto verticale o orizzontale, ad una distanza inferiore al valore minimo stabilito dagli standard.
Per le serrande circolari, la distanza minima è fissata a 30 mm.
Soluzione certificata
Per le serrande tagliafuoco Rf-t, la soluzione è costituita dai seguenti elementi: A: Tenuta universale per distanza minima; B: Tamponamento conforme alle classificazioni esistenti (Dichiarazione di prestazione)
A. Tamponamento dell'apertura sul lato con distanze minime tra serranda e parete/soffitto o un'altra serranda tagliafuoco: i pannelli in lana di roccia rigidi (150 kg/m³) vengono applicati a una profondità di min. 400 mm, di cui 150 mm sul lato del meccanismo della parete. Sul lato della parete senza meccanismo, i pannelli in lana di roccia rigidi devono essere almeno a filo della parete.
La superficie di questo tamponamento è ubicata tra gli assi (centri) delle serrande.
B. Il tamponamento della restante apertura viene eseguito secondo le classificazioni esistenti per le serrande tagliafuoco (Dichiarazione di prestazione).
Questo vale anche per serrande circolari installate a una distanza minima l'una dall'altra (da 30 a 200 mm) ma ad una distanza maggiore di 75 mm dalla parete/soffitto.
Informazioni dettagliate per ogni combinazione di parete/tamponamento si trovano nei rispettivi metodi di installazione.
Per le serrande tagliafuoco Rf-t, la soluzione è costituita dai seguenti elementi: A: Tenuta universale per distanza minima; B: Tamponamento conforme alle classificazioni esistenti (Dichiarazione di prestazione)
A. Tamponamento dell'apertura sul lato con distanze minime tra serranda e parete/soffitto o un'altra serranda tagliafuoco: i pannelli in lana di roccia rigidi (150 kg/m³) vengono applicati a una profondità di min. 400 mm, di cui 150 mm sul lato del meccanismo della parete. Sul lato della parete senza meccanismo, i pannelli in lana di roccia rigidi devono essere almeno a filo della parete.
La superficie di questo tamponamento è ubicata tra gli assi (centri) delle serrande.
B. Il tamponamento della restante apertura viene eseguito secondo le classificazioni esistenti per le serrande tagliafuoco (Dichiarazione di prestazione).
Questo vale anche per serrande circolari installate a una distanza minima l'una dall'altra (da 30 a 200 mm) ma ad una distanza maggiore di 75 mm dalla parete/soffitto.
Informazioni dettagliate per ogni combinazione di parete/tamponamento si trovano nei rispettivi metodi di installazione.
Limitazioni
L'orientamento dell'asse della pala deve essere orizzontale o con un'inclinazione massima di 45°.
È possibile installare un massimo di 3 serrande circolari a una distanza minima l'una dall'altra, verticalmente e orizzontalmente (con un gruppo di massimo 4 serrande).
Nota: quando si sigilla l'apertura con pannelli di lana di roccia ignifughi, il numero massimo di serrande dipende anche dalla massima superficie di applicazione consentita per il materiale di tenuta selezionato. Per queste informazioni, fare riferimento alle istruzioni del costruttore.
Nota: per l'installazione nella parete del condotto flessibile e nella parete in CLT si applicano condizioni diverse. Informazioni dettagliate sono disponibili nei relativi metodi di installazione.
L'orientamento dell'asse della pala deve essere orizzontale o con un'inclinazione massima di 45°.
È possibile installare un massimo di 3 serrande circolari a una distanza minima l'una dall'altra, verticalmente e orizzontalmente (con un gruppo di massimo 4 serrande).
Nota: quando si sigilla l'apertura con pannelli di lana di roccia ignifughi, il numero massimo di serrande dipende anche dalla massima superficie di applicazione consentita per il materiale di tenuta selezionato. Per queste informazioni, fare riferimento alle istruzioni del costruttore.
Nota: per l'installazione nella parete del condotto flessibile e nella parete in CLT si applicano condizioni diverse. Informazioni dettagliate sono disponibili nei relativi metodi di installazione.
Installazione in parete rigida
Il prodotto è stato testato e approvato in::
- Calcestruzzo armato ≥ 110 mm | EI 120 (ve i o) S - (500 Pa) | Malta/gesso | Tipo di installazione: a incasso, 0/360° Distanze minime autorizzate con l'asse fino a 45°. | Ø 100-315 mm
- Calcestruzzo aerato ≥ 100 mm | EI 120 (ve i o) S - (500 Pa) | Gesso | Tipo di installazione: a incasso, 0/360° Distanze minime autorizzate con l'asse fino a 45°. | Ø 100-315 mm
- Calcestruzzo aerato ≥ 100 mm | EI 120 (ve i o) S - (300 Pa) | Malta | Tipo di installazione: a incasso, 0/360° Distanze minime autorizzate con l'asse fino a 45°. | Ø 100-315 mm
- Calcestruzzo aerato ≥ 100 mm | EI 90 (ve i o) S - (500 Pa) | Malta | Tipo di installazione: a incasso, 0/360° Distanze minime autorizzate con l'asse fino a 45°. | Ø 100-315 mm
Le serrande possono essere installate a una distanza minima (≥ 30 mm) da una parete adiacente o da un'altra serranda.
Montare le serrande nell'apertura.
Applicare pannelli in lana di roccia rigidi (≥ 150 kg/m³) a una profondità di 400 mm (150 mm sul lato del meccanismo della parete) per sigillare l'apertura sui lati che presentano la distanza minima.
La superficie di questo tamponamento è ubicata tra gli assi (centri) delle serrande.
Attenzione: l'apertura è sigillata secondo la classificazione esistente (vedere il punto successivo) se: 2 serrande tagliafuoco sono installate a una distanza minima l'una dall'altra ma a una distanza normale (≥ 75 mm) dalla parete o dal pavimento/soffitto; una singola serranda antincendio (non un gruppo) si trova a una distanza minima (≤ 75 mm) dalla parete o dal pavimento/soffitto.
Applicare pannelli in lana di roccia rigidi (≥ 150 kg/m³) a una profondità di 400 mm (150 mm sul lato del meccanismo della parete) per sigillare l'apertura sui lati che presentano la distanza minima.
La superficie di questo tamponamento è ubicata tra gli assi (centri) delle serrande.
Attenzione: l'apertura è sigillata secondo la classificazione esistente (vedere il punto successivo) se: 2 serrande tagliafuoco sono installate a una distanza minima l'una dall'altra ma a una distanza normale (≥ 75 mm) dalla parete o dal pavimento/soffitto; una singola serranda antincendio (non un gruppo) si trova a una distanza minima (≤ 75 mm) dalla parete o dal pavimento/soffitto.
Installazione in parete rigida con blocco di installazione IFW
Il prodotto è stato testato e approvato in::
- Calcestruzzo aerato ≥ 105 mm | EI 90 (ve i o) S - (300 Pa) | Blocco di installazione IFW | Tipo di installazione: a incasso, 0/360° Distanze minime autorizzate. | Ø 100-315 mm
Installazione in pavimento rigido
Il prodotto è stato testato e approvato in::
- Calcestruzzo armato ≥ 150 mm | EI 120 (ho i o) S - (500 Pa) | Malta | Tipo di installazione: a incasso, 0/360° Distanze minime autorizzate. | Ø 100-315 mm
- Calcestruzzo aerato ≥ 100 mm | EI 90 (ho i o) S - (500 Pa) | Malta | Tipo di installazione: a incasso, 0/360° Distanze minime autorizzate. | Ø 100-315 mm
Le serrande possono essere installate a una distanza minima (≥ 30 mm) da una parete adiacente o da un'altra serranda.
Montare le serrande nell'apertura.
Applicare pannelli in lana di roccia rigidi (≥ 150 kg/m³) a una profondità di 400 mm (150 mm sul lato del meccanismo della pavimente) per sigillare l'apertura sui lati che presentano la distanza minima.
La superficie di questo tamponamento è ubicata tra gli assi (centri) delle serrande.
Attenzione: l'apertura è sigillata secondo la classificazione esistente (vedere il punto successivo) se: 2 serrande tagliafuoco sono installate a una distanza minima l'una dall'altra ma a una distanza normale (≥ 75 mm) dalla parete o dal pavimento/soffitto; una singola serranda antincendio (non un gruppo) si trova a una distanza minima (≤ 75 mm) dalla parete o dal pavimento/soffitto.
Applicare pannelli in lana di roccia rigidi (≥ 150 kg/m³) a una profondità di 400 mm (150 mm sul lato del meccanismo della pavimente) per sigillare l'apertura sui lati che presentano la distanza minima.
La superficie di questo tamponamento è ubicata tra gli assi (centri) delle serrande.
Attenzione: l'apertura è sigillata secondo la classificazione esistente (vedere il punto successivo) se: 2 serrande tagliafuoco sono installate a una distanza minima l'una dall'altra ma a una distanza normale (≥ 75 mm) dalla parete o dal pavimento/soffitto; una singola serranda antincendio (non un gruppo) si trova a una distanza minima (≤ 75 mm) dalla parete o dal pavimento/soffitto.
Installazione in parete leggera (telaio metallico e pannelli in cartongesso) con blocco di installazione IFW
Il prodotto è stato testato e approvato in::
- Pannello di cartongesso con telaio metallico tipo A (EN 520) ≥ 100 mm | EI 60 (ve i o) S - (500 Pa) | Lana di roccia ≥ 40 kg / m³ + pannelli di copertura | Tipo di installazione: a incasso, 0/360° Distanze minime autorizzate con l'asse fino a 45°. | Ø 100-250 mm
Le serrande possono essere installate a una distanza minima (≥ 30 mm) da una parete adiacente o da un'altra serranda.
Costruire il pannello in cartongesso e prevedere un telaio orizzontale e verticale attorno all'apertura.
Nell'apertura intorno alle serrande (Dn 50 mm), il vuoto tra i pannelli in cartongesso viene riempito di lana di roccia con una densità minima di 40 kg/m³.
Nell'apertura intorno alle serrande (Dn 50 mm), il vuoto tra i pannelli in cartongesso viene riempito di lana di roccia con una densità minima di 40 kg/m³.
Montare le serrande nell'apertura.
Applicare pannelli in lana di roccia rigidi (≥ 150 kg/m³) a una profondità di 400 mm (150 mm sul lato del meccanismo della parete) per sigillare l'apertura sui lati che presentano la distanza minima.
La superficie di questo tamponamento è ubicata tra gli assi (centri) delle serrande.
Attenzione: l'apertura è sigillata secondo la classificazione esistente (vedere il punto successivo) se: 2 serrande tagliafuoco sono installate a una distanza minima l'una dall'altra ma a una distanza normale (≥ 75 mm) dalla parete o dal pavimento/soffitto; una singola serranda antincendio (non un gruppo) si trova a una distanza minima (≤ 75 mm) dalla parete o dal pavimento/soffitto.
Applicare pannelli in lana di roccia rigidi (≥ 150 kg/m³) a una profondità di 400 mm (150 mm sul lato del meccanismo della parete) per sigillare l'apertura sui lati che presentano la distanza minima.
La superficie di questo tamponamento è ubicata tra gli assi (centri) delle serrande.
Attenzione: l'apertura è sigillata secondo la classificazione esistente (vedere il punto successivo) se: 2 serrande tagliafuoco sono installate a una distanza minima l'una dall'altra ma a una distanza normale (≥ 75 mm) dalla parete o dal pavimento/soffitto; una singola serranda antincendio (non un gruppo) si trova a una distanza minima (≤ 75 mm) dalla parete o dal pavimento/soffitto.
Installazione in parete leggera - telaio metallico e gesso
Il prodotto è stato testato e approvato in::
- Pannello di cartongesso con telaio metallico tipo A (EN 520) ≥ 100 mm | EI 60 (ve i o) S - (500 Pa) | Gesso | Tipo di installazione: a incasso, 0/360° Distanze minime autorizzate con l'asse fino a 45°. | Ø 100-315 mm
- Pannello di cartongesso con telaio metallico tipo F (EN 520) ≥ 100 mm | EI 90 (ve i o) S - (500 Pa) | Gesso | Tipo di installazione: a incasso, 0/360° Distanze minime autorizzate con l'asse fino a 45°. | Ø 100-315 mm
Le serrande possono essere installate a una distanza minima (≥ 30 mm) da una parete adiacente o da un'altra serranda.
Costruire il pannello in cartongesso e prevedere un telaio orizzontale e verticale attorno all'apertura.
Quando si installa una singola serranda tagliafuoco a una distanza minima dal soffitto, non è necessario, dal punto di vista della protezione antincendio, prevedere un telaio orizzontale e verticale attorno all’apertura.
Nell'apertura intorno alle serrande, il vuoto tra i pannelli i cartongesso viene parzialmente riempito (fino al diametro nominale + 80 mm) con lana di roccia con una densità minima di 40 kg/m³.
Quando si installa una singola serranda tagliafuoco a una distanza minima dal soffitto, non è necessario, dal punto di vista della protezione antincendio, prevedere un telaio orizzontale e verticale attorno all’apertura.
Nell'apertura intorno alle serrande, il vuoto tra i pannelli i cartongesso viene parzialmente riempito (fino al diametro nominale + 80 mm) con lana di roccia con una densità minima di 40 kg/m³.
Montare le serrande nell'apertura.
Applicare pannelli in lana di roccia rigidi (≥ 150 kg/m³) a una profondità di 400 mm (150 mm sul lato del meccanismo della parete) per sigillare l'apertura sui lati che presentano la distanza minima.
La superficie di questo tamponamento è ubicata tra gli assi (centri) delle serrande.
Attenzione: l'apertura è sigillata secondo la classificazione esistente (vedere il punto successivo) se: 2 serrande tagliafuoco sono installate a una distanza minima l'una dall'altra ma a una distanza normale (≥ 75 mm) dalla parete o dal pavimento/soffitto; una singola serranda antincendio (non un gruppo) si trova a una distanza minima (≤ 75 mm) dalla parete o dal pavimento/soffitto.
Applicare pannelli in lana di roccia rigidi (≥ 150 kg/m³) a una profondità di 400 mm (150 mm sul lato del meccanismo della parete) per sigillare l'apertura sui lati che presentano la distanza minima.
La superficie di questo tamponamento è ubicata tra gli assi (centri) delle serrande.
Attenzione: l'apertura è sigillata secondo la classificazione esistente (vedere il punto successivo) se: 2 serrande tagliafuoco sono installate a una distanza minima l'una dall'altra ma a una distanza normale (≥ 75 mm) dalla parete o dal pavimento/soffitto; una singola serranda antincendio (non un gruppo) si trova a una distanza minima (≤ 75 mm) dalla parete o dal pavimento/soffitto.
Installazione in parete leggera - telaio metallico e malta
Il prodotto è stato testato e approvato in::
- Pannello di cartongesso con telaio metallico tipo A (EN 520) ≥ 100 mm | EI 60 (ve i o) S - (300 Pa) | Malta | Tipo di installazione: a incasso, 0/360° Distanze minime autorizzate con l'asse fino a 45°. | Ø 100-315 mm
- Pannello di cartongesso con telaio metallico tipo F (EN 520) ≥ 100 mm | EI 120 (ve i o) S - (300 Pa) | Malta | Tipo di installazione: a incasso, 0/360° Distanze minime autorizzate con l'asse fino a 45°. | Ø 100-315 mm
Le serrande possono essere installate a una distanza minima (≥ 30 mm) da una parete adiacente o da un'altra serranda.
Costruire il pannello in cartongesso e prevedere un telaio orizzontale e verticale attorno all'apertura.
Montare le serrande nell'apertura.
Applicare pannelli in lana di roccia rigidi (≥ 150 kg/m³) a una profondità di 400 mm (150 mm sul lato del meccanismo della parete) per sigillare l'apertura sui lati che presentano la distanza minima.
La superficie di questo tamponamento è ubicata tra gli assi (centri) delle serrande.
Attenzione: l'apertura è sigillata secondo la classificazione esistente (vedere il punto successivo) se: 2 serrande tagliafuoco sono installate a una distanza minima l'una dall'altra ma a una distanza normale (≥ 75 mm) dalla parete o dal pavimento/soffitto; una singola serranda antincendio (non un gruppo) si trova a una distanza minima (≤ 75 mm) dalla parete o dal pavimento/soffitto.
Applicare pannelli in lana di roccia rigidi (≥ 150 kg/m³) a una profondità di 400 mm (150 mm sul lato del meccanismo della parete) per sigillare l'apertura sui lati che presentano la distanza minima.
La superficie di questo tamponamento è ubicata tra gli assi (centri) delle serrande.
Attenzione: l'apertura è sigillata secondo la classificazione esistente (vedere il punto successivo) se: 2 serrande tagliafuoco sono installate a una distanza minima l'una dall'altra ma a una distanza normale (≥ 75 mm) dalla parete o dal pavimento/soffitto; una singola serranda antincendio (non un gruppo) si trova a una distanza minima (≤ 75 mm) dalla parete o dal pavimento/soffitto.
Installazione in parete del condotto flessibile con blocco di installazione IFW
Il prodotto è stato testato e approvato in::
- Pannello di cartongesso con telaio metallico tipo F (EN 520) ≥ 90 mm | EI 90 (ve i o) S - (300 Pa) | Blocco di installazione IFW | Tipo di installazione: a incasso, 0/360° Distanze minime autorizzate. | Ø 100-315 mm
Installazione in parete CLT con blocco di installazione IFW
Il prodotto è stato testato e approvato in::
- Legno lamellare a strati incrociati ≥ 100 mm | EI 90 (ve i o) S - (300 Pa) | Blocco di installazione IFW | Tipo di installazione: a incasso, 0/360° Distanze minime autorizzate. | Ø 100-315 mm
Installazione in parete in blocchi di gesso
Il prodotto è stato testato e approvato in::
- Blocchi di gesso ≥ 70 mm | EI 120 (ve i o) S - (500 Pa) | Malta collante (per blocchi di gesso) | Tipo di installazione: a incasso, 0/360° Distanze minime autorizzate con l'asse fino a 45°. | Ø 100-315 mm
Le serrande possono essere installate a una distanza minima da una parete adiacente o da un'altra serranda.
Montare le serrande nell'apertura.
Applicare pannelli in lana di roccia rigidi (≥ 150 kg/m³) a una profondità di 400 mm (150 mm sul lato del meccanismo della parete) per sigillare l'apertura sui lati che presentano la distanza minima.
La superficie di questo tamponamento è ubicata tra gli assi (centri) delle serrande.
Attenzione: l'apertura è sigillata secondo la classificazione esistente (vedere il punto successivo) se: 2 serrande tagliafuoco sono installate a una distanza minima l'una dall'altra ma a una distanza normale (≥ 75 mm) dalla parete o dal pavimento/soffitto; una singola serranda antincendio (non un gruppo) si trova a una distanza minima (≤ 75 mm) dalla parete o dal pavimento/soffitto.
Applicare pannelli in lana di roccia rigidi (≥ 150 kg/m³) a una profondità di 400 mm (150 mm sul lato del meccanismo della parete) per sigillare l'apertura sui lati che presentano la distanza minima.
La superficie di questo tamponamento è ubicata tra gli assi (centri) delle serrande.
Attenzione: l'apertura è sigillata secondo la classificazione esistente (vedere il punto successivo) se: 2 serrande tagliafuoco sono installate a una distanza minima l'una dall'altra ma a una distanza normale (≥ 75 mm) dalla parete o dal pavimento/soffitto; una singola serranda antincendio (non un gruppo) si trova a una distanza minima (≤ 75 mm) dalla parete o dal pavimento/soffitto.
Installazione in parete leggera e in parete rigida, sigillatura con pannelli rigidi in lana di roccia con rivestimento
Il prodotto è stato testato e approvato in::
- Calcestruzzo aerato ≥ 100 mm | EI 120 (ve i o) S - (300 Pa) | Lana di roccia + rivestimento ≥ 140 kg/m³ + involucro rivestito | Tipo di installazione: a incasso, 0/360° Distanze minime autorizzate con l'asse fino a 45°. | Ø 100-315 mm
- Calcestruzzo aerato ≥ 100 mm | EI 90 (ve i o) S - (300 Pa) | Lana di roccia + rivestimento ≥ 140 kg/m³ | Tipo di installazione: a incasso, 0/360° Distanze minime autorizzate con l'asse fino a 45°. | Ø 100-315 mm
- Pannello di cartongesso con telaio metallico tipo A (EN 520) ≥ 100 mm | EI 60 (ve i o) S - (300 Pa) | Lana di roccia + rivestimento ≥ 140 kg/m³ | Tipo di installazione: a incasso, 0/360° Distanze minime autorizzate con l'asse fino a 45°. | Ø 100-315 mm
- Pannello di cartongesso con telaio metallico tipo F (EN 520) ≥ 100 mm | EI 120 (ve i o) S - (300 Pa) | Lana di roccia + rivestimento ≥ 140 kg/m³ + involucro rivestito | Tipo di installazione: a incasso, 0/360° Distanze minime autorizzate con l'asse fino a 45°. | Ø 100-315 mm
- Pannello di cartongesso con telaio metallico tipo F (EN 520) ≥ 100 mm | EI 90 (ve i o) S - (300 Pa) | Lana di roccia + rivestimento ≥ 140 kg/m³ | Tipo di installazione: a incasso, 0/360° Distanze minime autorizzate con l'asse fino a 45°. | Ø 100-315 mm
- Calcestruzzo aerato ≥ 100 mm | EI 60 (ve i o) S - (300 Pa) | Lana di roccia Mulcol Multimastic FB1 + rivestimento | Tipo di installazione: a incasso, 0/360° Distanze minime autorizzate con l'asse fino a 45°. | Ø 100-315 mm
- Pannello di cartongesso con telaio metallico tipo F (EN 520) ≥ 100 mm | EI 60 (ve i o) S - (300 Pa) | Lana di roccia Mulcol Multimastic FB1 + rivestimento | Tipo di installazione: a incasso, 0/360° Distanze minime autorizzate con l'asse fino a 45°. | Ø 100-315 mm
Per le pareti leggera, prevedere un telaio orizzontale e verticale attorno all’apertura. Eccezione: per la resistenza al fuoco EI60S/EI90S e sigillatura con pannelli tipo PROMASTOP o Hilti, non è necessario, dal punto di vista della protezione antincendio, prevedere un telaio orizzontale e verticale attorno all’apertura.
L'apertura attorno alla serranda è sigillata con 2 strati di pannelli di lana minerale da 50 mm con rivestimento resistente al fuoco su un lato (tipo PROMASTOP-CB 50 / PROMASTOP-CB/CC 50 / HILTI CFS-CT B / Mulcol Multimastic FB1 / PYRO-SAFE® FLAMMOTECT-A).
Le giunzioni su questi due strati devono essere installate sfalsate e coperte lungo il bordo con il rivestimento (tipo PROMASTOP-CC / HILTI CFS-S-ACR / Mulcol Multimastic SP / PYRO-SAFE® FLAMMOTECT-A).
Per EI 120 S, l'involucro della serranda antincendio è ricoperto con uno strato (> 1 mm) di rivestimento (tipo PROMASTOP-CC / HILTI CFS-CT / PYRO-SAFE® FLAMMOTECT-A).
La serranda non deve essere centrata nell'apertura (con dimensioni max. serranda tagliafuoco + 600 mm). La distanza massima tra la serranda e il bordo dell'apertura è di 400 mm.
Le serrande possono essere installate a una distanza minima (≥ 30 mm) da una parete adiacente o da un'altra serranda.
Costruire il pannello in cartongesso e prevedere un telaio orizzontale e verticale attorno all'apertura.
Quando si installa una singola serranda tagliafuoco a una distanza minima dal soffitto, non è necessario, dal punto di vista della protezione antincendio, prevedere un telaio orizzontale e verticale attorno all’apertura in caso di resistenza al fuoco desiderata EI60S/EI90S.
Montare le serrande nell'apertura.
Quando si installa una singola serranda tagliafuoco a una distanza minima dal soffitto, non è necessario, dal punto di vista della protezione antincendio, prevedere un telaio orizzontale e verticale attorno all’apertura in caso di resistenza al fuoco desiderata EI60S/EI90S.
Montare le serrande nell'apertura.
Applicare pannelli in lana di roccia rigidi (≥ 150 kg/m³) a una profondità di 400 mm (150 mm sul lato del meccanismo della parete) per sigillare l'apertura sui lati che presentano la distanza minima.
La superficie di questo tamponamento è ubicata tra gli assi (centri) delle serrande.
Attenzione: l'apertura è sigillata secondo la classificazione esistente (vedere il punto successivo) se: 2 serrande tagliafuoco sono installate a una distanza minima l'una dall'altra ma a una distanza normale (≥ 75 mm) dalla parete o dal pavimento/soffitto; una singola serranda antincendio (non un gruppo) si trova a una distanza minima (≤ 75 mm) dalla parete o dal pavimento/soffitto.
La superficie di questo tamponamento è ubicata tra gli assi (centri) delle serrande.
Attenzione: l'apertura è sigillata secondo la classificazione esistente (vedere il punto successivo) se: 2 serrande tagliafuoco sono installate a una distanza minima l'una dall'altra ma a una distanza normale (≥ 75 mm) dalla parete o dal pavimento/soffitto; una singola serranda antincendio (non un gruppo) si trova a una distanza minima (≤ 75 mm) dalla parete o dal pavimento/soffitto.
Installazione in pavimento rigido, sigillatura con pannelli rigidi in lana di roccia con rivestimento
Il prodotto è stato testato e approvato in::
- Calcestruzzo aerato ≥ 150 mm | EI 120 (ho i o) S - (300 Pa) | Lana di roccia + rivestimento ≥ 140 kg/m³ + involucro rivestito | Tipo di installazione: a incasso, 0/360° Distanze minime autorizzate. | Ø 100-315 mm
- Calcestruzzo aerato ≥ 150 mm | EI 90 (ho i o) S - (300 Pa) | Lana di roccia + rivestimento ≥ 140 kg/m³ | Tipo di installazione: a incasso, 0/360° Distanze minime autorizzate. | Ø 100-315 mm
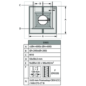
L'apertura attorno alla serranda è sigillata con 2 strati di pannelli di lana minerale da 50 mm con rivestimento resistente al fuoco su un lato (tipo PROMASTOP-CB 50 / PROMASTOP-CB/CC 50 / HILTI CFS-CT B).
Le giunzioni su questi due strati devono essere installate sfalsate e coperte lungo il bordo con il rivestimento (tipo PROMASTOP-CC / HILTI CFS-S-ACR).
Per EI 120 S, l'involucro della serranda antincendio è ricoperto con uno strato (> 1 mm) di rivestimento (tipo PROMASTOP-CC / HILTI CFS-CT).
La serranda non deve essere centrata nell'apertura (con dimensioni max. serranda tagliafuoco + 600 mm). La distanza massima tra la serranda e il bordo dell'apertura è di 400 mm.
Installazione distante dalla parete, sigillatura e isolamento con pannelli rigidi in lana di roccia con rivestimento
Il prodotto è stato testato e approvato in::
- Calcestruzzo aerato ≥ 100 mm | EI 90 (ve i o) S - (300 Pa) | Canale zincato + lana di roccia + rivestimento ≥ 140 kg/m³ 2x50 mm | Tipo di installazione: montaggio remoto, 0/180°. Distanze minime consentite. | Ø 100-315 mm
- Pannello di cartongesso con telaio metallico tipo F (EN 520) ≥ 100 mm | EI 90 (ve i o) S - (300 Pa) | Canale zincato + lana di roccia + rivestimento ≥ 140 kg/m³ 2x50 mm | Tipo di installazione: montaggio remoto, 0/180°. Distanze minime consentite. | Ø 100-315 mm
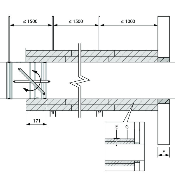
Nella parete viene ricavata un'apertura con dimensioni massime "A".
Per una parete divisoria leggera, seguire le istruzioni di montaggio riportate in "Installazione in parete leggera o rigida - sigillatura con pannelli di lana di roccia resistenti al fuoco".
La serranda tagliafuoco è montata distante dalla parete al termine di un canale di ventilazione in metallo. La serranda tagliafuoco è supportata da un anello di serraggio dello stesso diametro della serranda stessa, mantenuto in posizione da aste filettate "C". Il canale è fornito di sostegni ogni 1500 mm. Tali sostegni sono costituiti da aste filettate tipo "C" e profilati in acciaio "D" a forma di U. Viene lasciato uno spazio libero di massimo 25 mm tra le aste filettate e le pareti verticali dell'involucro in lana di roccia "B".
Per una parete divisoria leggera, seguire le istruzioni di montaggio riportate in "Installazione in parete leggera o rigida - sigillatura con pannelli di lana di roccia resistenti al fuoco".
La serranda tagliafuoco è montata distante dalla parete al termine di un canale di ventilazione in metallo. La serranda tagliafuoco è supportata da un anello di serraggio dello stesso diametro della serranda stessa, mantenuto in posizione da aste filettate "C". Il canale è fornito di sostegni ogni 1500 mm. Tali sostegni sono costituiti da aste filettate tipo "C" e profilati in acciaio "D" a forma di U. Viene lasciato uno spazio libero di massimo 25 mm tra le aste filettate e le pareti verticali dell'involucro in lana di roccia "B".
L'apertura nel canale di ventilazione viene sigillata con lastre di lana di roccia tipo PROMASTOP-CB (/CC) / Hilti CFS-CT B (“G”). I bordi sono sigillati e mantenuti in posizione con il rivestimento PROMASTOP-CC / HILTI CFS-S ACR.
Il canale è coperto per tutta la sua lunghezza con pannelli in lana di roccia "G". Per aderire al canale, i pannelli sono interamente ricoperti su un lato con rivestimento resistente al fuoco e applicati al canale di ventilazione con viti e rondelle in acciaio "E".
L'involucro della serranda è ricoperto da pannelli in lana di roccia "G" per 171 mm. Occorre lasciare uno spazio libero attorno al meccanismo per consentire l'accesso.
Nell'apertura tra l'involucro della serranda e i pannelli in lana di roccia, viene applicato un ulteriore pannello di lana di roccia tipo "G", rivestito con PROMASTOP-CC /HILTI CFS-S ACR.
L'involucro della serranda è ricoperto da pannelli in lana di roccia "G" per 171 mm. Occorre lasciare uno spazio libero attorno al meccanismo per consentire l'accesso.
Nell'apertura tra l'involucro della serranda e i pannelli in lana di roccia, viene applicato un ulteriore pannello di lana di roccia tipo "G", rivestito con PROMASTOP-CC /HILTI CFS-S ACR.
Le giunzioni tra i pannelli, tra la parete e i pannelli e le viti e le rondelle sono riempiti con rivestimento PROMASTOP-CC / HILTI CFS-S ACR.
Installazione distante dalla parete, sigillatura con malta e isolamento con pannelli rigidi in lana di roccia con rivestimento
Il prodotto è stato testato e approvato in::
- Calcestruzzo aerato ≥ 100 mm | EI 90 (ve i o) S - (300 Pa) | Canale zincato + lana di roccia + rivestimento ≥ 140 kg/m³ 2x50 mm + malta | Tipo di installazione: montaggio remoto, 0/180°. Distanze minime consentite. | Ø 100-315 mm
Nella parete viene ricavata un'apertura con dimensioni massime "A".
La serranda tagliafuoco è montata distante dalla parete al termine di un canale di ventilazione in metallo. La serranda tagliafuoco è supportata da un anello di serraggio dello stesso diametro della serranda stessa, mantenuto in posizione da aste filettate "C". Il canale è fornito di sostegni ogni 1500 mm. Tali sostegni sono costituiti da aste filettate tipo "C" e profilati in acciaio "D" a forma di U. Viene lasciato uno spazio libero di massimo 25 mm tra le aste filettate e le pareti verticali dell'involucro in lana di roccia "B".
La serranda tagliafuoco è montata distante dalla parete al termine di un canale di ventilazione in metallo. La serranda tagliafuoco è supportata da un anello di serraggio dello stesso diametro della serranda stessa, mantenuto in posizione da aste filettate "C". Il canale è fornito di sostegni ogni 1500 mm. Tali sostegni sono costituiti da aste filettate tipo "C" e profilati in acciaio "D" a forma di U. Viene lasciato uno spazio libero di massimo 25 mm tra le aste filettate e le pareti verticali dell'involucro in lana di roccia "B".
Il canale è coperto per tutta la sua lunghezza con pannelli in lana di roccia "G". Per aderire al canale, i pannelli sono interamente ricoperti su un lato con rivestimento resistente al fuoco e applicati al canale di ventilazione con viti e rondelle in acciaio "E".
L'involucro della serranda è ricoperto da pannelli in lana di roccia "G" per 171 mm. Occorre lasciare uno spazio libero attorno al meccanismo per consentire l'accesso.
Nell'apertura tra l'involucro della serranda e i pannelli in lana di roccia, viene applicato un ulteriore pannello di lana di roccia tipo "G", rivestito con PROMASTOP-CC /HILTI CFS-S ACR.
L'involucro della serranda è ricoperto da pannelli in lana di roccia "G" per 171 mm. Occorre lasciare uno spazio libero attorno al meccanismo per consentire l'accesso.
Nell'apertura tra l'involucro della serranda e i pannelli in lana di roccia, viene applicato un ulteriore pannello di lana di roccia tipo "G", rivestito con PROMASTOP-CC /HILTI CFS-S ACR.
Le giunzioni tra i pannelli, tra la parete e i pannelli e le viti e le rondelle sono riempiti con rivestimento PROMASTOP-CC / HILTI CFS-S ACR.
Le serrande possono essere installate a una distanza minima da una parete/pavimento adiacente o da un'altra serranda.
Seguire le istruzioni di montaggio riportate in "Installazione distante dalla parete, sigillatura e isolamento con pannelli rigidi in lana di roccia con rivestimento".
L'apertura del canale è sigillata con malta.
Seguire le istruzioni di montaggio riportate in "Installazione distante dalla parete, sigillatura e isolamento con pannelli rigidi in lana di roccia con rivestimento".
L'apertura del canale è sigillata con malta.
Installazione distante dalla parete + GEOFLAM
Il prodotto è stato testato e approvato in::
- Calcestruzzo aerato ≥ 100 mm | EI 120 (ve i o) S - (500 Pa) | Canale zincato + GEOFLAM® F 45 mm + malta | Tipo di installazione: montaggio remoto, 0/180°. Distanze minime consentite. | Ø 100-315 mm
- Calcestruzzo aerato ≥ 100 mm | EI 120 (ve i o) S - (500 Pa) | Condotto zincato + GEOFLAM® Light 35 mm + malta | Tipo di installazione: montaggio remoto, 0/180°. Distanze minime consentite. | Ø 100-315 mm
La serranda tagliafuoco è montata distante dalla parete al termine di un canale di ventilazione in metallo. Il canale è fornito di sostegni ogni 1000 mm.
Tali sostegni sono costituiti da aste filettate tipo "C" e profilati in acciaio "D" a forma di U. Viene lasciato uno spazio libero di massimo 25 mm tra le aste filettate e le pareti verticali dell'involucro "B".
Tali sostegni sono costituiti da aste filettate tipo "C" e profilati in acciaio "D" a forma di U. Viene lasciato uno spazio libero di massimo 25 mm tra le aste filettate e le pareti verticali dell'involucro "B".
L'apertura del canale è sigillata con normale malta. Il canale è coperto con pannelli spessi 45 mm GEOFLAM F tipo "G".
I pannelli aderiscono uno all'altro con colla e gessofibra "E". Anche l'involucro della serranda è ricoperto per una lunghezza di 171 mm.
I pannelli aderiscono uno all'altro con colla e gessofibra "E". Anche l'involucro della serranda è ricoperto per una lunghezza di 171 mm.
I pannelli GEOFLAM F si estendono fino a una distanza di 20 mm dalla parete. Lo spazio libero è riempito di gessofibra.
Lo stesso riempimento viene utilizzato per sigillare la connessione tra i pannelli GEOFLAM F e l'involucro della serranda.
Lo stesso riempimento viene utilizzato per sigillare la connessione tra i pannelli GEOFLAM F e l'involucro della serranda.
Le aste filettate sono coperte da pannelli a forma di U GEOFLAM (Ø 90 mm) e fissate con colla e gessofibra.
I profili sono coperti con gusci a forma di U GEOFLAM 100 x 60 mm, fissati alla parte inferiore del condotto con intonaco cementizio GEOCOL (GEOSTAFF).
I profili sono coperti con gusci a forma di U GEOFLAM 100 x 60 mm, fissati alla parte inferiore del condotto con intonaco cementizio GEOCOL (GEOSTAFF).
Le serrande possono essere installate a una distanza minima da una parete adiacente o da un'altra serranda.
Applicare pannelli in lana di roccia rigida (150 kg/m³) a una profondità di 250 mm (spessore di parete + aggiuntivo sul lato posteriore della parete) per sigillare l'apertura sul lato con distanze minime.
Installazione in parete rigida con collare per montaggio a sbalzo 1s
Il prodotto è stato testato e approvato in::
- Calcestruzzo aerato Non applicabile EI 60 (ve i n o) S - (500 Pa) Parete rigida Calcestruzzo aerato ≥ 100 mm | EI 120 (ve i o) S - (500 Pa) | Non applicabile | Tipo di installazione: a sbalzo, 0/180°. Distanze minime autorizzate. | CR120-1S Ø 100-315 mm
Installazione in parete leggera con collare per montaggio a sbalzo 1s
Il prodotto è stato testato e approvato in::
- Calcestruzzo aerato Non applicabile EI 60 (ve i n o) S - (500 Pa) Parete rigida Pannello di cartongesso con telaio metallico tipo F (EN 520) ≥ 100 - ≤ 125 mm | EI 120 (ve i o) S - (500 Pa) | Non applicabile | Tipo di installazione: a sbalzo, 0/180°. Distanze minime autorizzate. | CR120-1S Ø 100-315 mm
Ispezione della serranda tramite l'opzione UL o tramite l'apertura del fusibile del meccanismo ONE
Un'apertura di ispezione (disponibile solo ordinando l'opzione “UL”) consente di determinare visivamente la posizione e le condizioni della serranda con un endoscopio. Per le serrande tagliafuoco dotate del meccanismo ONE, è possibile effettuare questa ispezione con telecamera anche attraverso l'apertura dell'elemento fusibile.
Opzione UL:
Rimuovere il connettore a tenuta d'aria dalla serranda.
Opzione UL:
Rimuovere il connettore a tenuta d'aria dalla serranda.
Inserire la telecamera dell'endoscopio (ad esempio Inspecam Rf-t) attraverso l'apertura e controllare l'interno della serranda.
Dopo l'ispezione, rimontare correttamente il connettore a tenuta d'aria nell'apertura della serranda. La posizione è cruciale per garantire la tenuta d'aria della serranda tagliafuoco.
Estrarre dal meccanismo l'elemento fusibile e il coperchio in gomma simultaneamente.
Inserire la telecamera dell'endoscopio (ad esempio Inspecam Rf-t) attraverso l'apertura e controllare l'interno della serranda.
Inserire nuovamente l'elemento fusibile nel meccanismo finché non scatta in posizione. Chiudere il vano batteria con coperchio in gomma.
Inserire la telecamera dell'endoscopio (ad esempio Inspecam Rf-t) attraverso l'apertura e controllare l'interno della serranda.
Inserire nuovamente l'elemento fusibile nel meccanismo finché non scatta in posizione. Chiudere il vano batteria con coperchio in gomma.
Note generali
- L'installazione deve essere conforme al manuale di installazionee al rapporto di classificazione.
- Orientamento dell'asse: vedere la dichiarazione di prestazione.
- Evitare di ostruire canali adiacenti.
- Installazione del prodotto: sempre con pala della serranda chiusa.
- Verificare se la pala può muoversi liberamente.
- Rispettare le distanze di sicurezza da altri elementi costruttivi. Anche il meccanismo deve rimanere accessibile: lasciate 200 mm di spazio libero intorno all’ alloggiamento.
- La classe di tenuta all'aria sarà mantenuta se la serranda viene installata come descritto nel manuale di installazione.
- Le serrande tagliafuoco Rf-t sono sempre testate in costruzioni standardizzate secondo EN 1366-2. I risultati ottenuti sono validi per installazioni simili con resistenza al fuoco, spessore e densità uguali o superiori alla struttura di supporto utilizzata durante la prova.
- Se lo spessore della parete supera lo spessore minimo specificato nelle nostre istruzioni di installazione, si applicano le seguenti condizioni alla profondità della sigillatura: - Per le pareti flessibili e le pareti con sistema a pannelli sandwich, la sigillatura deve essere sempre applicata sull'intera profondità della parete. - Nel caso di pareti rigide, pavimenti rigidi e pareti in blocchi di gesso, è sufficiente la profondità minima di sigillatura indicata nelle nostre istruzioni di installazione (spesso pari allo spessore minimo della parete). Applicare la sigillatura all'altezza della pala della serranda (dall'indicazione del limite della parete).
- Quando si installa una serranda tagliafuoco in una parete metallica flessibile, alcuni metodi di installazione non richiedono profili di rinforzo intorno all'apertura della parete dal punto di vista della protezione antincendio (vedere sotto). Per la realizzazione di questo tipo di parete, attenersi sempre alle istruzioni generali del produttore di questi sistemi di pareti.
- La serranda deve assicurare un accesso per ispezione e manutenzione.
- Prevedere almeno due prove di funzionamento ogni anno.