- Home
- Produkter
- Rökkontrollspjäll
- MARKAGE MB
- Montering
MARKAGE MB - Montering
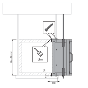
Montering i betongvägg
Produkten testades och godkändes i:
- Lättbetong ≥ 100 mm | EI 90 (vew i o) S1500 C10000 HOT 400/30 MA MULTI | Murbruk | Typ av montage: infällt 0/90/180/270°. I avdelningsgräns (vägg, 'w'). | 200x200 mm ≤ MARKAGE MB ≤ 1000x1600 mm

Gör en öppning med måtten (Bn + A) x (Hn + 150) mm. A = 375 mm för ett standardspjäll.
Obs: för ett spjäll med höjd ≤ 400 mm och tillbehöret BP FM eller ZENiX 1SD, A = 545 mm.
Montering i betongvägg, tätning med skivor av stenull med beläggning
Produkten testades och godkändes i:
- Lättbetong ≥ 100 mm | EI 90 (vew i o) S1500 C10000 HOT 400/30 MA MULTI | Stenull + beläggning ≥ 140 kg/m³ | Typ av montage: infällt 0/90/180/270°. I avdelningsgräns (vägg, 'w'). | 200x200 mm ≤ MARKAGE MB ≤ 1000x1600 mm

Gör en öppning med måtten (Bn + A + C + D) x (Hn + 70 + B + E) mm. A = 295 mm för ett standardspjäll. Obs: för ett spjäll med höjd ≤ 400 mm och tillbehöret BP FM eller ZENiX 1SD, A = 465 mm.

Montera spjället i öppningen och se till att tätningen (B/C/D/E) täcker 50 till 400 mm.
Spjället behöver inte vara centrerat i öppningen. Det maximala avståndet mellan spjället och kanten på öppningen är 400 mm.
Spjället behöver inte vara centrerat i öppningen. Det maximala avståndet mellan spjället och kanten på öppningen är 400 mm.

Stötta tunneln eller blockera spjällbladet i stängt läge för att förhindra deformering av höljet under torkning av tätningsmaterialet.

Täta resten av öppningen med två lager mineralullsskivor med beläggning, tjocklek på 50 mm (type PROMASTOP CB-CC). Panelerna måste installeras förskjutna. Applicera alltid en beläggning (typ PROMASTOP-CC) på sidorna av varje panel vid installationen.
Installation i en betongvägg med krage 1S
Produkten testades och godkändes i:

Gör en öppning med måtten (Bn + A) x (Hn + 90) mm. A = 315 mm för ett standardspjäll.
Obs: för ett spjäll med höjd ≤ 400 mm och tillbehöret BP FM eller ZENiX 1SD, A = 485 mm.

Montera spjället i öppningen tills hylsan når väggen och hylsornas monteringshål överensstämmer 50 mm från öppningens kant.
Fäst hylsan i väggen med de medföljande skruvarna Ø 8 x 110 mm och brickor.
Obs: de medföljande skruvarna är endast lämpliga för lättbetong. Använd rätt typ av skruvar för varje väggtyp: I tegelvägg: Förborra med Ø6 mm och använd medföljande skruvar och brickor. I massiv betongvägg: Använd betongskruv eller ankare med klassificering R90...R120 ≥ 0.1kN.
Fäst hylsan i väggen med de medföljande skruvarna Ø 8 x 110 mm och brickor.
Obs: de medföljande skruvarna är endast lämpliga för lättbetong. Använd rätt typ av skruvar för varje väggtyp: I tegelvägg: Förborra med Ø6 mm och använd medföljande skruvar och brickor. I massiv betongvägg: Använd betongskruv eller ankare med klassificering R90...R120 ≥ 0.1kN.
Montering i betonggolv
Produkten testades och godkändes i:
- Lättbetong ≥ 100 mm | EI 90/120 (how i o) S1500 C10000 HOT 400/30 MA MULTI | Murbruk | Typ av montage: infällt 0/90/180/270°. I avdelningsgräns (vägg, 'w'). | 200x200 mm ≤ MARKAGE MB ≤ 1000x1600 mm

Gör en öppning med måtten (Bn + A) x (Hn + 150) mm. A = 375 mm för ett standardspjäll.
Obs: för ett spjäll med höjd ≤ 400 mm och tillbehöret BP FM eller ZENiX 1SD, A = 545 mm.
Montering i betonggolv, tätning med skivor av stenull med beläggning
Produkten testades och godkändes i:
- Lättbetong ≥ 100 mm | EI 90/120 (how i o) S1500 C10000 HOT 400/30 MA MULTI | Stenull + beläggning ≥ 140 kg/m³ | Typ av montage: infällt 0/90/180/270°. I avdelningsgräns (vägg, 'w'). | 200x200 mm ≤ MARKAGE MB ≤ 1000x1600 mm

Gör en öppning med måtten (Bn + A + C + D) x (Hn + 70 + B + E) mm. A = 295 mm för ett standardspjäll. Obs: för ett spjäll med höjd ≤ 400 mm och tillbehöret BP FM eller ZENiX 1SD, A = 465 mm.

Tätning B, C, D och E mellan 50 och 400 mm var.
Spjället behöver inte vara centrerat i öppningen. Det maximala avståndet mellan spjället och kanten på öppningen är 400 mm.
Spjället behöver inte vara centrerat i öppningen. Det maximala avståndet mellan spjället och kanten på öppningen är 400 mm.

Stötta tunneln eller blockera spjällbladet i stängt läge för att förhindra deformering av höljet under torkning av tätningsmaterialet.

Täta resten av öppningen med två lager mineralullsskivor med beläggning, tjocklek på 50 mm (type PROMASTOP CB-CC). Panelerna måste installeras förskjutna. Applicera alltid en beläggning (typ PROMASTOP-CC) på sidorna av varje panel vid installationen.
Installation i en horisontell eldfast kanal, i kanalens plan
Produkten testades och godkändes i:
- Promatect LS ≥ 35 mm | EI 90/120* (hod i o) S1500 C10000 HOT 400/30 MA MULTI | Lim Promat K84 | Typ av montage: infällt 0/90/180/270°. * Installation i EI120-certifierade kanaler för EI120-klassificering av hela systemet. Monterad i kanalen ('d'). | 200x200 mm ≤ MARKAGE MB ≤ 1000x1600 mm
- Promatect L500 ≥ 40 mm | EI 90/120* (hod i o) S1500 C10000 HOT 400/30 MA MULTI | Lim Promat K84 | Typ av montage: infällt 0/90/180/270°. * Installation i EI120-certifierade kanaler för EI120-klassificering av hela systemet. Monterad i kanalen ('d'). | 200x200 mm ≤ MARKAGE MB ≤ 1000x1600 mm
- Promatect AD ≥ 40 mm | EI 90/120* (hod i o) S1500 C10000 HOT 400/30 MA MULTI | Lim Promat K84 | Typ av montage: infällt 0/90/180/270°. * Installation i EI120-certifierade kanaler för EI120-klassificering av hela systemet. Monterad i kanalen ('d'). | 200x200 mm ≤ MARKAGE MB ≤ 1000x1600 mm
- Promatect LS ≥ 35 mm | EI 60/120* (hod i o) S1000 C10000 MA MULTI | Lim Promat K84 | Typ av montage: infällt 0/90/180/270°. * Installation i EI120-certifierade kanaler för EI120-klassificering av hela systemet. Monterad i kanalen ('d'). | 1000x1600 mm ≤ MARKAGE MB ≤ 1200x2400 mm
- Promatect L500 ≥ 40 mm | EI 60/120* (hod i o) S1000 C10000 MA MULTI | Lim Promat K84 | Typ av montage: infällt 0/90/180/270°. * Installation i EI120-certifierade kanaler för EI120-klassificering av hela systemet. Monterad i kanalen ('d'). | 1000x1600 mm ≤ MARKAGE MB ≤ 1200x2400 mm
- Promatect AD ≥ 40 mm | EI 60/120* (hod i o) S1000 C10000 MA MULTI | Lim Promat K84 | Typ av montage: infällt 0/90/180/270°. * Installation i EI120-certifierade kanaler för EI120-klassificering av hela systemet. Monterad i kanalen ('d'). | 1000x1600 mm ≤ MARKAGE MB ≤ 1200x2400 mm

Spjället kan monteras direkt i denna öppning.
Montera spjället i öppningen med tillgänglighet till inspektionsluckan. Placera spjällets bakre vägg mot kanalen.
Installationen av spjället kräver inte ett minsta kanaldjup. Produkten hindrar inte luftflödet i kanalen.
Montera spjället i öppningen med tillgänglighet till inspektionsluckan. Placera spjällets bakre vägg mot kanalen.
Installationen av spjället kräver inte ett minsta kanaldjup. Produkten hindrar inte luftflödet i kanalen.

Täta fogen mellan spjället och öppningen med limmet Promat K84. Installera positionerings- och tätningsremsorna med skruvar Ø 5 x 50 mm med ett maximalt avstånd på 200 mm och Promat K84. Se till att inga skruvar tränger in i spjällhuset.
Tillverka positionerings- och tätningsremsorna av kanalmaterial. Använd två remsor på 80 mm respektive 60 mm som hörntätningar.
Tillverka positionerings- och tätningsremsorna av kanalmaterial. Använd två remsor på 80 mm respektive 60 mm som hörntätningar.
Installation i en horisontell eldfast kanal, överlappande med en sida av kanalen
Produkten testades och godkändes i:
- Promatect LS ≥ 35 mm | EI 90/120* (hod i o) S1500 C10000 HOT 400/30 MA MULTI | Lim Promat K84 | Typ av montage: infällt 0/90/180/270°. * Installation i EI120-certifierade kanaler för EI120-klassificering av hela systemet. Monterad i kanalen ('d'). | 200x200 mm ≤ MARKAGE MB ≤ 1000x1600 mm
- Promatect L500 ≥ 40 mm | EI 90/120* (hod i o) S1500 C10000 HOT 400/30 MA MULTI | Lim Promat K84 | Typ av montage: infällt 0/90/180/270°. * Installation i EI120-certifierade kanaler för EI120-klassificering av hela systemet. Monterad i kanalen ('d'). | 200x200 mm ≤ MARKAGE MB ≤ 1000x1600 mm
- Promatect AD ≥ 40 mm | EI 90/120* (hod i o) S1500 C10000 HOT 400/30 MA MULTI | Lim Promat K84 | Typ av montage: infällt 0/90/180/270°. * Installation i EI120-certifierade kanaler för EI120-klassificering av hela systemet. Monterad i kanalen ('d'). | 200x200 mm ≤ MARKAGE MB ≤ 1000x1600 mm
- Promatect LS ≥ 35 mm | EI 60/120* (hod i o) S1000 C10000 MA MULTI | Lim Promat K84 | Typ av montage: infällt 0/90/180/270°. * Installation i EI120-certifierade kanaler för EI120-klassificering av hela systemet. Monterad i kanalen ('d'). | 1000x1600 mm ≤ MARKAGE MB ≤ 1200x2400 mm
- Promatect L500 ≥ 40 mm | EI 60/120* (hod i o) S1000 C10000 MA MULTI | Lim Promat K84 | Typ av montage: infällt 0/90/180/270°. * Installation i EI120-certifierade kanaler för EI120-klassificering av hela systemet. Monterad i kanalen ('d'). | 1000x1600 mm ≤ MARKAGE MB ≤ 1200x2400 mm
- Promatect AD ≥ 40 mm | EI 60/120* (hod i o) S1000 C10000 MA MULTI | Lim Promat K84 | Typ av montage: infällt 0/90/180/270°. * Installation i EI120-certifierade kanaler för EI120-klassificering av hela systemet. Monterad i kanalen ('d'). | 1000x1600 mm ≤ MARKAGE MB ≤ 1200x2400 mm

Gör en öppning med minimimått (Bn + 70) x (Hn + 70) mm.
Om öppningen överlappar med en kant på kanalen, följ installationsmetoden nedan.
Om öppningen överlappar med en kant på kanalen, följ installationsmetoden nedan.

Spjället kan monteras direkt i denna öppning.
Om spjällets flänsar sammanfaller med kanalens kant, se till att de ligger i jämnhöjd med kanalen.
Installationen av spjället kräver inte ett minsta kanaldjup. Produkten hindrar inte luftflödet i kanalen.
Om spjällets flänsar sammanfaller med kanalens kant, se till att de ligger i jämnhöjd med kanalen.
Installationen av spjället kräver inte ett minsta kanaldjup. Produkten hindrar inte luftflödet i kanalen.

Täta fogen mellan spjället och öppningen med limmet Promat K84. Installera positionerings- och tätningsremsorna med skruvar Ø 5 x 50 mm med ett maximalt avstånd på 200 mm och Promat K84. Se till att inga skruvar tränger in i spjällhuset.
Tillverka positionerings- och tätningsremsorna av kanalmaterial. Använd två remsor på 80 mm respektive 60 mm som hörntätningar.
Tillverka positionerings- och tätningsremsorna av kanalmaterial. Använd två remsor på 80 mm respektive 60 mm som hörntätningar.
Installation i en vertikal eldfast kanal eller i det vertikala planet av en horisontell kanal, i kanalens plan
Produkten testades och godkändes i:
- Promatect LS ≥ 35 mm | EI 90/120* (ved i o) S1500 C10000 HOT 400/30 MA MULTI | Lim Promat K84 | Typ av montage: infällt 0/90/180/270°. * Installation i EI120-certifierade kanaler för EI120-klassificering av hela systemet. Monterad i kanalen ('d'). | 200x200 mm ≤ MARKAGE MB ≤ 1000x1600 mm
- Promatect L500 ≥ 40 mm | EI 90/120* (ved i o) S1500 C10000 HOT 400/30 MA MULTI | Lim Promat K84 | Typ av montage: infällt 0/90/180/270°. * Installation i EI120-certifierade kanaler för EI120-klassificering av hela systemet. Monterad i kanalen ('d'). | 200x200 mm ≤ MARKAGE MB ≤ 1000x1600 mm
- Promatect AD ≥ 40 mm | EI 90/120* (ved i o) S1500 C10000 HOT 400/30 MA MULTI | Lim Promat K84 | Typ av montage: infällt 0/90/180/270°. * Installation i EI120-certifierade kanaler för EI120-klassificering av hela systemet. Monterad i kanalen ('d'). | 200x200 mm ≤ MARKAGE MB ≤ 1000x1600 mm
- Promatect LS ≥ 35 mm | EI 90/120* (ved i o) S1500 C10000 HOT 400/30 MA MULTI | Lim Promat K84 | Typ av montage: infällt 0/90/180/270°. * Installation i EI120-certifierade kanaler för EI120-klassificering av hela systemet. Monterad i kanalen ('d'). | 200x200 mm ≤ MARKAGE MB ≤ 1000x1600 mm
- Promatect L500 ≥ 40 mm | EI 90/120* (ved i o) S1500 C10000 HOT 400/30 MA MULTI | Lim Promat K84 | Typ av montage: infällt 0/90/180/270°. * Installation i EI120-certifierade kanaler för EI120-klassificering av hela systemet. Monterad i kanalen ('d'). | 200x200 mm ≤ MARKAGE MB ≤ 1000x1600 mm
- Promatect AD ≥ 40 mm | EI 90/120* (ved i o) S1500 C10000 HOT 400/30 MA MULTI | Lim Promat K84 | Typ av montage: infällt 0/90/180/270°. * Installation i EI120-certifierade kanaler för EI120-klassificering av hela systemet. Monterad i kanalen ('d'). | 200x200 mm ≤ MARKAGE MB ≤ 1000x1600 mm
- Promatect LS ≥ 35 mm | EI 60/120* (ved i o) S1000 C10000 MA MULTI | Lim Promat K84 | Typ av montage: infällt 0/90/180/270°. * Installation i EI120-certifierade kanaler för EI120-klassificering av hela systemet. Monterad i kanalen ('d'). | 1000x1600 mm ≤ MARKAGE MB ≤ 1200x2400 mm
- Promatect L500 ≥ 40 mm | EI 60/120* (ved i o) S1000 C10000 MA MULTI | Lim Promat K84 | Typ av montage: infällt 0/90/180/270°. * Installation i EI120-certifierade kanaler för EI120-klassificering av hela systemet. Monterad i kanalen ('d'). | 1000x1600 mm ≤ MARKAGE MB ≤ 1200x2400 mm
- Promatect AD ≥ 40 mm | EI 60/120* (ved i o) S1000 C10000 MA MULTI | Lim Promat K84 | Typ av montage: infällt 0/90/180/270°. * Installation i EI120-certifierade kanaler för EI120-klassificering av hela systemet. Monterad i kanalen ('d'). | 1000x1600 mm ≤ MARKAGE MB ≤ 1200x2400 mm
- Promatect LS ≥ 35 mm | EI 60/120* (ved i o) S1000 C10000 MA MULTI | Lim Promat K84 | Typ av montage: infällt 0/90/180/270°. * Installation i EI120-certifierade kanaler för EI120-klassificering av hela systemet. Monterad i kanalen ('d'). | 1000x1600 mm ≤ MARKAGE MB ≤ 1200x2400 mm
- Promatect L500 ≥ 40 mm | EI 60/120* (ved i o) S1000 C10000 MA MULTI | Lim Promat K84 | Typ av montage: infällt 0/90/180/270°. * Installation i EI120-certifierade kanaler för EI120-klassificering av hela systemet. Monterad i kanalen ('d'). | 1000x1600 mm ≤ MARKAGE MB ≤ 1200x2400 mm
- Promatect AD ≥ 40 mm | EI 60/120* (ved i o) S1000 C10000 MA MULTI | Lim Promat K84 | Typ av montage: infällt 0/90/180/270°. * Installation i EI120-certifierade kanaler för EI120-klassificering av hela systemet. Monterad i kanalen ('d'). | 1000x1600 mm ≤ MARKAGE MB ≤ 1200x2400 mm

Spjället kan monteras direkt i denna öppning.
Montera spjället i öppningen med tillgänglighet till inspektionsluckan. Placera fackets bakre vägg mot kanalen.
Installationen av spjället kräver inte ett minsta kanaldjup. Produkten hindrar inte luftflödet i kanalen.
A = 295 mm för ett standardspjäll. Obs: för ett spjäll med höjd ≤ 400 mm och tillbehöret BP FM eller ZENiX 1SD, A = 465 mm.
Montera spjället i öppningen med tillgänglighet till inspektionsluckan. Placera fackets bakre vägg mot kanalen.
Installationen av spjället kräver inte ett minsta kanaldjup. Produkten hindrar inte luftflödet i kanalen.
A = 295 mm för ett standardspjäll. Obs: för ett spjäll med höjd ≤ 400 mm och tillbehöret BP FM eller ZENiX 1SD, A = 465 mm.

Täta fogen mellan spjället och öppningen med limmet Promat K84. Installera positionerings- och tätningsremsorna med skruvar Ø 5 x 50 mm med ett maximalt avstånd på 200 mm och Promat K84. Se till att inga skruvar tränger in i spjällhuset.
Tillverka positionerings- och tätningsremsorna av kanalmaterial. Använd två remsor på 80 mm respektive 60 mm som hörntätningar.
Tillverka positionerings- och tätningsremsorna av kanalmaterial. Använd två remsor på 80 mm respektive 60 mm som hörntätningar.
Installation i en vertikal eldfast kanal, överlappande med en sida av kanalen
Produkten testades och godkändes i:

Gör en öppning med minimimått (Bn + 70) x (Hn + 70) mm.
Om öppningen överlappar med en kant på kanalen, följ installationsmetoden nedan.
Om öppningen överlappar med en kant på kanalen, följ installationsmetoden nedan.

Alternativt kan spjället hängas separat med den vertikala upphängningen (VS MAS).
Spjället kan monteras direkt i denna öppning.
Montera spjället i öppningen med tillgänglighet till inspektionsluckan.
Spjällets bakre vägg placeras mot kanalen om den inte sträcker sig utanför kanalen.
Om spjällets flänsar sammanfaller med kanalens kant, se till att de ligger i jämnhöjd med kanalen.
Installationen av spjället kräver inte ett minsta kanaldjup. Produkten hindrar inte luftflödet i kanalen.
Spjället kan monteras direkt i denna öppning.
Montera spjället i öppningen med tillgänglighet till inspektionsluckan.
Spjällets bakre vägg placeras mot kanalen om den inte sträcker sig utanför kanalen.
Om spjällets flänsar sammanfaller med kanalens kant, se till att de ligger i jämnhöjd med kanalen.
Installationen av spjället kräver inte ett minsta kanaldjup. Produkten hindrar inte luftflödet i kanalen.

Täta fogen mellan spjället och öppningen med limmet Promat K84. För en plan tätning av spjällets fläns, använd en remsa 10 x 100 mm gjord av kalciumsilikat med en densitet på 870 kg/m³ (typ PROMATECT H). Fäst dessa remsor med två rader skruvar Ø 3,9 x 35 mm med 150 mm mellanrum.

Installera positionerings- och tätningsremsorna med skruvar Ø 5 x 50 mm med ett maximalt avstånd på 200 mm och limmet Promat K84. Se till att inga skruvar tränger in i spjällhuset.
Tillverka positionerings- och tätningsremsorna av kanalmaterial. Använd två remsor på 80 mm respektive 60 mm som hörntätningar.
Tillverka positionerings- och tätningsremsorna av kanalmaterial. Använd två remsor på 80 mm respektive 60 mm som hörntätningar.
Installation i det vertikala planet av en horisontell eldfast kanal, överlappande med en sida av kanalen
Produkten testades och godkändes i:

Gör en öppning med minimimått (Bn + 70) x (Hn + 70) mm.
Om öppningen överlappar med en kant på kanalen, följ installationsmetoden nedan.
Om öppningen överlappar med en kant på kanalen, följ installationsmetoden nedan.

Alternativt kan spjället hängas separat med den vertikala upphängningen (VS MAS).
Spjället kan monteras direkt i denna öppning.
Montera spjället i öppningen med tillgänglighet till inspektionsluckan.
Om spjällets flänsar sammanfaller med kanalens kant, se till att de ligger i jämnhöjd med kanalen.
Installationen av spjället kräver inte ett minsta kanaldjup. Produkten hindrar inte luftflödet i kanalen.
Spjället kan monteras direkt i denna öppning.
Montera spjället i öppningen med tillgänglighet till inspektionsluckan.
Om spjällets flänsar sammanfaller med kanalens kant, se till att de ligger i jämnhöjd med kanalen.
Installationen av spjället kräver inte ett minsta kanaldjup. Produkten hindrar inte luftflödet i kanalen.

Täta fogen mellan spjället och öppningen med limmet Promat K84. Installera positionerings- och tätningsremsorna med skruvar Ø 5 x 50 mm med ett maximalt avstånd på 200 mm och Promat K84. Se till att inga skruvar tränger in i spjällhuset.
Tillverka positionerings- och tätningsremsorna av kanalmaterial. Använd två remsor på 80 mm respektive 60 mm som hörntätningar.
A = 295 mm för ett standardspjäll. Obs: för ett spjäll med höjd ≤ 400 mm och tillbehöret BP FM eller ZENiX 1SD, A = 465 mm.
Tillverka positionerings- och tätningsremsorna av kanalmaterial. Använd två remsor på 80 mm respektive 60 mm som hörntätningar.
A = 295 mm för ett standardspjäll. Obs: för ett spjäll med höjd ≤ 400 mm och tillbehöret BP FM eller ZENiX 1SD, A = 465 mm.
Montering i massiv schaktvägg med murbrukstätning
Produkten testades och godkändes i:

Gör en öppning med måtten (Bn + A + max 80mm) x (Hn + 150mm). A = 295 mm för ett standardspjäll. Observera: för en ventil med en höjd på ≤ 400 mm och med tillval BP FM eller ZENiX 1SD, A = 465 mm.

Som tillval kan ventilen placeras i öppningens mitt med hjälp av KITS SUPP. Placera elementen i KITS SUPP i öppningen på de angivna avstånden. Fäst varje element genom att limma eller skruva fast det i öppningen.
Obs: Se till att båda kilarna på varje KITS SUPP-element förblir rörliga i förhållande till varandra.
Använd ett vattenpass för att placera ventilen. Höjden kan justeras genom att flytta varje element i KITS SUPP. Ställ in en rak vinkel genom att rikta in elementen i KITS SUPP mot den vertikala öppningen.
Obs: Elementen i KITS SUPP finns inte i ventilens manöverutrymme.
Obs: Se till att båda kilarna på varje KITS SUPP-element förblir rörliga i förhållande till varandra.
Använd ett vattenpass för att placera ventilen. Höjden kan justeras genom att flytta varje element i KITS SUPP. Ställ in en rak vinkel genom att rikta in elementen i KITS SUPP mot den vertikala öppningen.
Obs: Elementen i KITS SUPP finns inte i ventilens manöverutrymme.

Lägg till delar av KITS SUPP på den återstående sidan med de angivna avstånden. Eliminera glappet mellan väggen och ventilen genom att flytta båda kilarna på varje KITS SUPP-element i förhållande till varandra.
Förankra eventuellt ventilen inuti väggen med en lämplig skruvtyp för den väggtypen. Borra genom både tunnelväggen och elementen i KITS SUPP.
Obs: Kontrollera att inga skruvar sticker ut som kan hindra ventilbladens rotation. När du placerar skruvarna ska du om möjligt tänka på ventilbladens rotationsriktning.
Förankra eventuellt ventilen inuti väggen med en lämplig skruvtyp för den väggtypen. Borra genom både tunnelväggen och elementen i KITS SUPP.
Obs: Kontrollera att inga skruvar sticker ut som kan hindra ventilbladens rotation. När du placerar skruvarna ska du om möjligt tänka på ventilbladens rotationsriktning.

Borra genom både tunnelväggen och elementen i KITS SUPP för att placera eventuella ytterligare förankringar. Se till att allt glapp mellan tunnelväggen och den fria ytan fylls helt av elementen i KITS SUPP.
Obs: Kontrollera att inga skruvar sticker ut som kan hindra ventilbladens rotation. När du placerar skruvarna ska du om möjligt tänka på ventilbladens rotationsriktning.
Obs: Kontrollera att inga skruvar sticker ut som kan hindra ventilbladens rotation. När du placerar skruvarna ska du om möjligt tänka på ventilbladens rotationsriktning.

Obs: Förankring av ventilen utan KITS SUPP kan allvarligt skada produkten. Om förankringsskruvarna dras åt utan stöd på fognivå kan tunnelväggen deformeras och gå sönder.

Stötta tunneln eller blockera spjällbladet i stängt läge för att förhindra deformering av höljet under torkning av tätningsmaterialet.
Installation i en eldfast kanal, i kanalens tvärsnitt
Produkten testades och godkändes i:

Placera spjället i mitten av kanalen med yttermått (Bn + 70) x (Hn + 70) mm. Alternativt kan spjället hängas separat med den vertikala upphängningen (VS MAS). Analogt kan den horisontella upphängningen (HS MAS) användas med en vertikal kanal.
Installation i en eldfast kanal, i slutet av kanalen
Produkten testades och godkändes i:

Placera spjället i mitten av kanalen med yttermått (Bn + 70) x (Hn + 70) mm. Alternativt kan spjället hängas separat med den vertikala upphängningen (VS MAS). Analogt kan den horisontella upphängningen (HS MAS) användas med en vertikal kanal.
Batterimontage med tillval JK BAT

För batterimontage med spjällbladen i linje med varandra:
Installera båda spjällen mot varandra med anslutningsfacken på motsatta sidor.
Installera kalciumsilikatplattorna i slutet av varje spår mellan båda spjällen. Se till att plattorna ligger i linje med spjällets anslutningsflänsar.
Installera båda spjällen mot varandra med anslutningsfacken på motsatta sidor.
Installera kalciumsilikatplattorna i slutet av varje spår mellan båda spjällen. Se till att plattorna ligger i linje med spjällets anslutningsflänsar.

Fäst det ena spjället mot det andra med de medföljande skruvarna Ø 5 x 70 mm. Var uppmärksam på spjällbladens rotationsriktning och se till att skruvarna inte stör spjällbladen.

Kragen med yttermått ((2 x Bn) + 150) mm x (Hn + 70) mm är lämplig för anslutning till en gemensam kanal.

Inget JK BAT-kit krävs för batterimontage med anslutningsfacken i linje med varandra:
Installera båda spjällen mot varandra med anslutningsfacken i linje.
Installera båda spjällen mot varandra med anslutningsfacken i linje.
Installation med vertikal upphängning (VS MAS)

Montera vinkelfästena på spjällets hörn.
Orienteringen beror på önskade orientering av spjället (vertikala eller horisontella spjällblad).
Rikta in U-profilerna på vinkelfästena mot varandra och notera den vertikala riktningen. Kortsidan av varje vinkelfäste, med en skruv på, ska vara på över- eller undersidan av spjället.
Orienteringen beror på önskade orientering av spjället (vertikala eller horisontella spjällblad).
Rikta in U-profilerna på vinkelfästena mot varandra och notera den vertikala riktningen. Kortsidan av varje vinkelfäste, med en skruv på, ska vara på över- eller undersidan av spjället.

Fäst vinkelfästena med de medföljande skruvarna Ø 5 x 35 mm. Skruvarna nära anslutningsutrymmet är 25 mm från kanten, medan skruvarna i tunnelväggen är 55 mm från kanten.

Montera gängstängerna (≥ M10) för spjällupphängning på fram- och baksidan av väggen, med F = 320 mm för ett standardspjäll. Obs: för ett spjäll med höjd ≤ 400 mm och tillbehöret BP FM eller ZENiX 1SD, A = 490 mm. Sätt en flik och en mutter på varje gängad stång. Rikta in alla flikar på samma höjd.
Installation med horisontell upphängning (HS MAS)

Fäst vinkelfästena med de medföljande skruvarna Ø 5 x 35 mm. Skruvarna nära anslutningsfacket är 20 mm från kanten, medan skruvarna i tunnelväggen är 50 mm från kanten.

Montera gängstängerna (≥ M10) för spjällupphängning med A = 375 mm för ett standardspjäll. Obs: för ett spjäll med höjd ≤ 400 mm och tillbehöret BP FM eller ZENiX 1SD, A = 545 mm. Positionera spjället och placera en flik och en mutter på varje gängstång som infästning.
Avsluta tätningen av spjället enligt riktlinjerna per väggtyp.
Avsluta tätningen av spjället enligt riktlinjerna per väggtyp.
Allmänna kommentarer
- Spjället ska installeras i enlighet med montageanvisningen och provningsrapporten.
- Montering av rökgasevakueringskanal måste överensstämma med klassificeringsrapporten från tillverkaren.
- Position spjällaxel: se prestandadeklarationen.
- Undvik blockering av angränsande rökgasevakueringskanaler.
- Kontrollera att bladet kan rör sig fritt.
- Rf-t rökkkontrollspjäll kan användas i kanaler som har testats enligt SS-EN 1366-8 och SS-EN 1366-9.
- Tänk på att: vid montering ska produkten hanteras med försiktighet och förbli skyddad från eventuella tätningsprodukter.
- Tänk på att: rengör all eventuellt damm och smuts innan installationen tas i drift.
- Tänk på att: se till att bladet får plats inuti rökevakueringskanaler.